天顺公寓3室1厅1卫南朝向96.0万元/套出售
-
96万
总价
-
3室1厅1卫
户型
-
89.1㎡
建筑面积
买房加房产交流群,省钱不踩雷
3000+人正在热聊
加入群聊
-
单价
10774元/平米
- 挂牌价格解析
-
楼层
高层/7层
- 咨询楼层
-
套内
暂无数据
- 咨询套内使用面积
-
朝向
南
-
装修
精装修
-
年代
2005
-
发布
2026-01-27
-
咨询总首付
首付约38.2万
首付税费及佣金情况 -
深度测评
小区天顺公寓(北仑-新碶镇)
-
更多
楼户比、楼层高度、交易历史、抵押信息
-
核验码
202304293302060014
交通综合评分
查看全部6.2
“较好”
超过宁波28.7%的小区
-
地铁公交
8.0
-
驾车出行
10.0
本月均价 14055元/m²
环比上月 下跌 4.81%
同比去年 下跌 28.22%
猜你喜欢
同小区其它房源
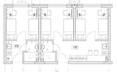
户型齐全,主打明卫,客厅朝南二居
户型主要有57平-70平的明卫,客厅朝南的二居 、89平-124平的户型方正,明厨,明卫,客厅朝南,双卧朝南,主卧朝南的三居 。
*获取完整户型报告,同时会有免费语音讲解服务
买房加房产交流群,省钱不踩雷
3000+人正在热聊
加入群聊
- 免费咨询
- 专业服务
- 区域解读
- 户型分析
免责声明:房源信息由网站用户提供,其真实性、合法性由信息提供者负责,最终以政府部门登记备案为准。本网站不声明或保证内容之正确性和可靠性,购买该房屋时,请谨慎核查。入学情况仅凭历史经验总结,在此不承诺升学事宜。请您在签订合同之前,切勿支付任何形式的费用,以免上当受骗。


