盛达茗苑3室2厅2卫南朝向269.0万元/套出售
-
269万
总价
-
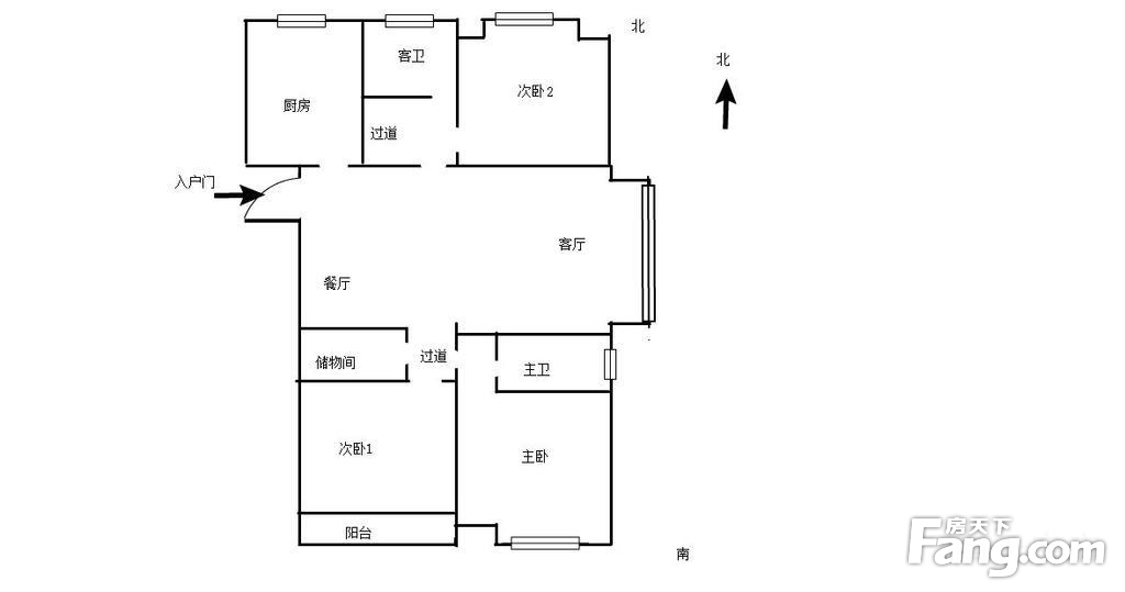
3室2厅2卫
户型
-
128.24㎡
建筑面积
买房加房产交流群,省钱不踩雷
3000+人正在热聊
加入群聊
-
单价
20976元/平米
- 挂牌价格解析
-
楼层
高层/29层
- 咨询楼层
-
套内
暂无数据
- 咨询套内使用面积
-
朝向
南
-
装修
精装修
-
年代
2014
-
发布
2026-02-03
-
地铁
距5号线钟公庙站约922米
-
咨询总首付
首付约106.1万
首付税费及佣金情况 -
深度测评
小区盛达茗苑(鄞州-钟公庙)
-
更多
楼户比、楼层高度、交易历史、抵押信息
房源描述(1)
-
核心卖点
万达对面 地段好 生活方便 交通方便 地铁口
-
业主心态
房东急售 诚心出售 价可谈 随时看房
周边配套
地址:四明西路与钟公庙路交汇处
交通综合评分
查看全部7.9
“较好”
超过宁波35.8%的小区
-
地铁公交
10.0
-
驾车出行
9.0
-
城际交通
4.0
本月均价 26409元/m²
环比上月 下跌 1.66%
同比去年 下跌 15.21%
猜你喜欢
同小区其它房源
户型齐全,主打户型方正,明卫,明厨,双卧朝南,主卧朝南三居
盛达城户型主要有84平-128平的户型方正,明卫,明厨,双卧朝南,主卧朝南的三居 、134平-135平的户型方正,明卫,明厨,双阳台,双卧朝南,主卧朝南的四居 、93平-93平的户型方正,独立衣帽间,明厨,明卫,双阳台,主卧朝南的二居 。
*获取完整户型报告,同时会有免费语音讲解服务
买房加房产交流群,省钱不踩雷
3000+人正在热聊
加入群聊
- 免费咨询
- 专业服务
- 区域解读
- 户型分析
免责声明:房源信息由网站用户提供,其真实性、合法性由信息提供者负责,最终以政府部门登记备案为准。本网站不声明或保证内容之正确性和可靠性,购买该房屋时,请谨慎核查。入学情况仅凭历史经验总结,在此不承诺升学事宜。请您在签订合同之前,切勿支付任何形式的费用,以免上当受骗。





