都市森林二期别墅4室2厅3卫南朝向1800.0万元/套出售
-
1800万
总价
-
4室2厅3卫
户型
-
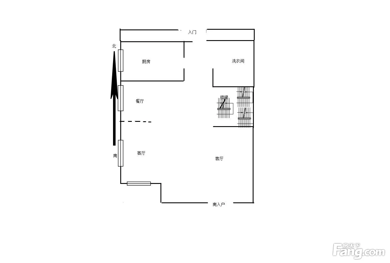
195㎡
建筑面积
买房加房产交流群,省钱不踩雷
3000+人正在热聊
加入群聊
-
单价
92308元/平米
- 挂牌价格解析
-
楼层
1层
- 咨询楼层
-
套内
暂无数据
- 咨询套内使用面积
-
朝向
南
-
装修
豪华装修
-
发布
2026-01-16
-
地铁
距3号线四明中路站约455米
-
咨询总首付
首付约783.6万
首付税费及佣金情况 -
深度测评
小区都市森林二期别墅(鄞州-万达广场)
-
更多
楼户比、楼层高度、交易历史、抵押信息
房源描述(1)
-
核心卖点
全屋美国进口智能豪华配套。 看房提前约提前联系
-
业主心态
业主诚心出售 价格可刀 装修非常豪华 看房提前联系
周边配套
地址:四明中路万达广场对面
交通综合评分
查看全部8.2
“较好”
超过宁波83.7%的小区
-
地铁公交
10.0
-
驾车出行
10.0
-
城际交通
4.0
-
27908元/㎡
本月挂牌均价
-
0.24%
环比上月
买房加房产交流群,省钱不踩雷
3000+人正在热聊
加入群聊
- 免费咨询
- 专业服务
- 区域解读
- 户型分析
免责声明:房源信息由网站用户提供,其真实性、合法性由信息提供者负责,最终以政府部门登记备案为准。本网站不声明或保证内容之正确性和可靠性,购买该房屋时,请谨慎核查。入学情况仅凭历史经验总结,在此不承诺升学事宜。请您在签订合同之前,切勿支付任何形式的费用,以免上当受骗。




