胜丰佳苑3室2厅2卫南朝向135.0万元/套出售
-
135万
总价
-
3室2厅2卫
户型
-
90㎡
建筑面积
买房加房产交流群,省钱不踩雷
3000+人正在热聊
加入群聊
-
单价
15000元/平米
- 挂牌价格解析
-
楼层
顶层/5层
- 咨询楼层
-
套内
暂无数据
- 咨询套内使用面积
-
朝向
南
-
装修
精装修
-
年代
2009
-
发布
2026-01-14
-
地铁
距1号线泽民站约927米
-
咨询总首付
首付约53万
首付税费及佣金情况 -
深度测评
小区胜丰佳苑(海曙-翠柏路)
-
更多
楼户比、楼层高度、交易历史、抵押信息
-
核验码
202009153302030037
房源描述(1)
-
核心卖点
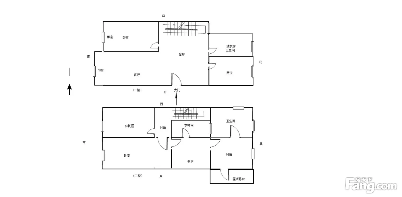
顶加阁楼,使用面积大,精装修的,可以宁波包入住的
-
业主心态
诚心诚意的出售,只要客户喜欢价格好商量的哦
周边配套
地址:海曙区胜丰路110弄
交通综合评分
查看全部5.2
“一般”
超过宁波35.9%的小区
-
地铁公交
10.0
-
城际交通
4.0
本月均价 18197元/m²
环比上月 上涨 3.05%
同比去年 下跌 20.34%
猜你喜欢
同小区其它房源
户型齐全,主打户型方正,明卫,明厨,主卧朝南三居
胜丰佳苑户型主要有106平-110平的户型方正,明卫,明厨,主卧朝南的三居 、61平-95平的户型方正,明卫,明厨,客厅朝南,全明格局,主卧朝南的二居 。
*获取完整户型报告,同时会有免费语音讲解服务
-
14589元/㎡
本月挂牌均价
-
0.63%
环比上月
买房加房产交流群,省钱不踩雷
3000+人正在热聊
加入群聊
- 免费咨询
- 专业服务
- 区域解读
- 户型分析
免责声明:房源信息由网站用户提供,其真实性、合法性由信息提供者负责,最终以政府部门登记备案为准。本网站不声明或保证内容之正确性和可靠性,购买该房屋时,请谨慎核查。入学情况仅凭历史经验总结,在此不承诺升学事宜。请您在签订合同之前,切勿支付任何形式的费用,以免上当受骗。


