空中叠墅 视野开阔 装修独特 俯视整个江景
-
2488万
总价
-
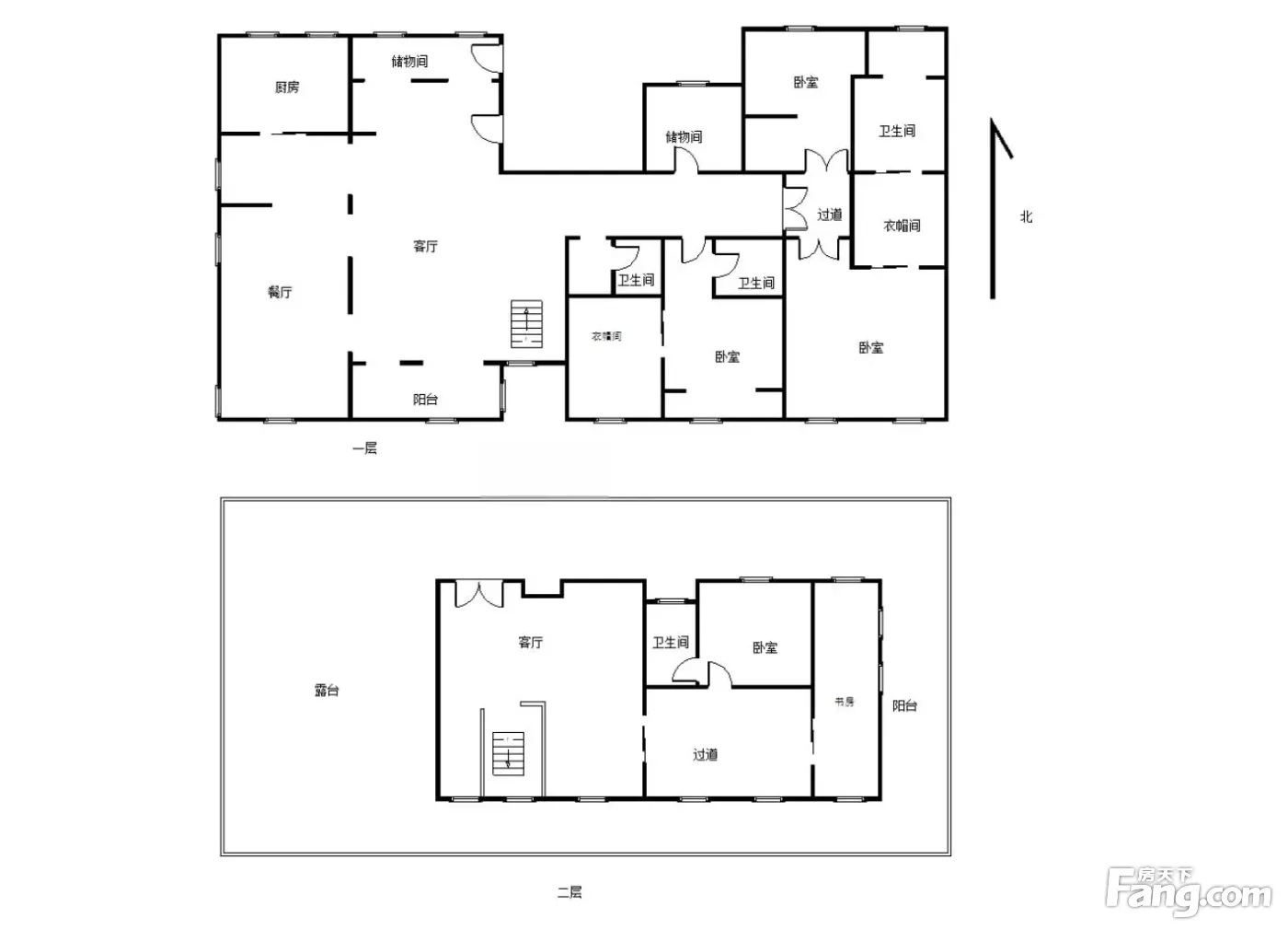
7室3厅1卫
户型
-
436.96㎡
建筑面积
买房加房产交流群,省钱不踩雷
3000+人正在热聊
加入群聊
-
单价
56939元/平米
- 挂牌价格解析
-
楼层
27层
- 咨询楼层
-
套内
435.96㎡
- 咨询套内使用面积
-
楼型
独栋
-
朝向
东
-
装修
精装修
-
年代
2018
-
发布
2026-01-09
-
地铁
暂无数据
-
咨询总首付
首付约1083.6万
首付税费及佣金情况 -
深度测评
小区印象外滩(鄞州-万达广场)
-
更多
楼户比、楼层高度、交易历史、抵押信息
房源描述(1)
-
27908元/㎡
本月挂牌均价
-
0.24%
环比上月
买房加房产交流群,省钱不踩雷
3000+人正在热聊
加入群聊
- 免费咨询
- 专业服务
- 区域解读
- 户型分析
免责声明:房源信息由网站用户提供,其真实性、合法性由信息提供者负责,最终以政府部门登记备案为准。本网站不声明或保证内容之正确性和可靠性,购买该房屋时,请谨慎核查。入学情况仅凭历史经验总结,在此不承诺升学事宜。请您在签订合同之前,切勿支付任何形式的费用,以免上当受骗。

