通透全明户型,楼层好采光好,户型方正,精装带暖气
-
248万
总价
-
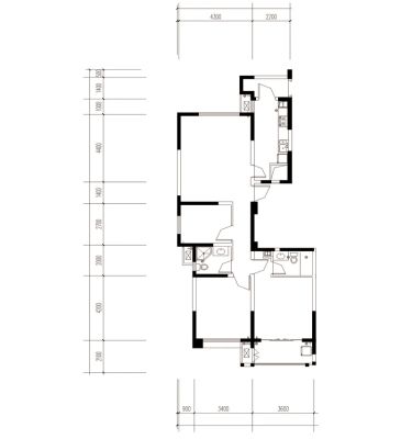
3室2厅
户型
-
128.74㎡
建筑面积
买房加房产交流群,省钱不踩雷
3000+人正在热聊
加入群聊
-
单价
19264元/平米
- 挂牌价格解析
-
楼层
高楼层/33层
- 咨询楼层
-
套内
暂无数据
- 咨询套内使用面积
-
楼型
板塔结合
-
朝向
南
-
装修
其他
-
供暖
暂无数据
-
发布
2025-08-18
-
地铁
距5号线稻香楼站约781米
-
咨询总首付
首付约75.2万
首付税费及佣金情况 -
深度测评
小区顶峰国际公寓(包河-大钟楼南熏门)
-
更多
楼户比、楼层高度、交易历史、抵押信息
周边配套
地址:屯溪路388号(南一环路与桐城路交叉口)
交通综合评分
查看全部4.0
“一般”
超过合肥84.1%的小区
-
地铁公交
10.0
本月均价 20339元/m²
环比上月 下跌 1.07%
同比去年 下跌 19.36%
猜你喜欢
同小区其它房源
户型齐全,主打户型方正,明卫,客厅朝南,双阳台,双卧朝南三居
顶峰国际公寓户型主要有126平-136平的户型方正,明卫,客厅朝南,双阳台,双卧朝南的三居 、77平-110平的户型方正,明厨,明卫,客厅朝南,全明格局的二居 、61平-76平的户型方正,明卫,明厨,客厅朝南的一居 。
*获取完整户型报告,同时会有免费语音讲解服务
-
21389元/㎡
本月挂牌均价
-
0.89%
环比上月
买房加房产交流群,省钱不踩雷
3000+人正在热聊
加入群聊
免责声明:房源信息由网站用户提供,其真实性、合法性由信息提供者负责,最终以政府部门登记备案为准。本网站不声明或保证内容之正确性和可靠性,购买该房屋时,请谨慎核查。入学情况仅凭历史经验总结,在此不承诺升学事宜。请您在签订合同之前,切勿支付任何形式的费用,以免上当受骗。



