格局好视野宽阔采光充足配套设施齐全交通便利
-
179万
总价
-
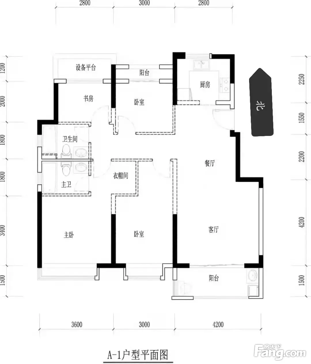
4室2厅
户型
-
113㎡
建筑面积
买房加房产交流群,省钱不踩雷
3000+人正在热聊
加入群聊
-
单价
15841元/平米
- 挂牌价格解析
-
楼层
低楼层/11层
- 咨询楼层
-
套内
暂无数据
- 咨询套内使用面积
-
楼型
板楼
-
朝向
南
-
装修
毛坯
-
供暖
自供暖
-
发布
2022-06-03
-
地铁
距4号线奥体中心站约729米
-
咨询总首付
首付约71万
首付税费及佣金情况 -
深度测评
小区宝龙世家(江北-洪塘)
-
更多
楼户比、楼层高度、交易历史、抵押信息
周边配套
地址:洪塘广元路与长兴路交汇处
交通综合评分
查看全部8.2
“较好”
超过宁波96.5%的小区
-
地铁公交
10.0
-
驾车出行
10.0
-
城际交通
4.0
本月均价 16718元/m²
环比上月 下跌 2.53%
同比去年 下跌 5.46%
猜你喜欢
同小区其它房源
户型齐全,主打全明格局,卧室朝南三居
宝龙世家户型主要有94平-98平的全明格局,卧室朝南的三居 、112平-114平的户型方正,动静分离,卧室朝南的四居 。
*获取完整户型报告,同时会有免费语音讲解服务
-
16874元/㎡
本月挂牌均价
-
1.76%
环比上月
买房加房产交流群,省钱不踩雷
3000+人正在热聊
加入群聊
免责声明:房源信息由网站用户提供,其真实性、合法性由信息提供者负责,最终以政府部门登记备案为准。本网站不声明或保证内容之正确性和可靠性,购买该房屋时,请谨慎核查。入学情况仅凭历史经验总结,在此不承诺升学事宜。请您在签订合同之前,切勿支付任何形式的费用,以免上当受骗。



