此房满五年税费少,装修精致可以拎包入住,江景房
-
750万
总价
-
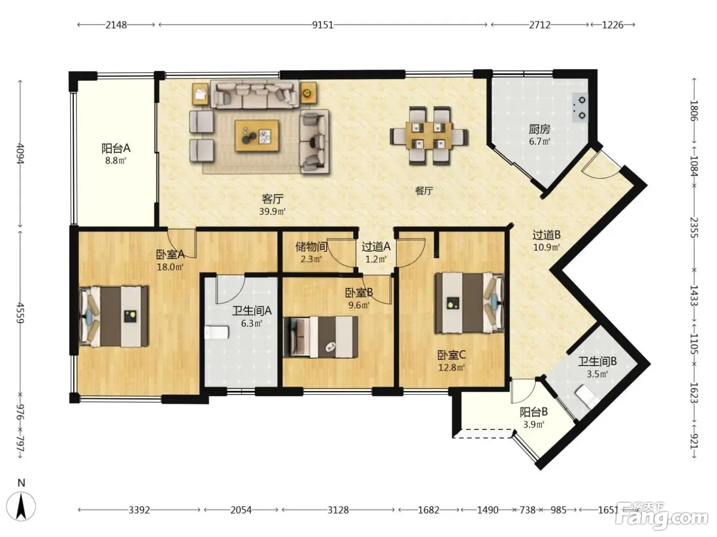
3室1厅2卫
户型
-
157.09㎡
建筑面积
买房加房产交流群,省钱不踩雷
3000+人正在热聊
-
单价
47744元/平米
- 挂牌价格解析
-
楼层
中楼层/32层
- 咨询楼层
-
套内
暂无数据
- 咨询套内使用面积
-
楼型
板塔结合
-
朝向
南
-
装修
其他
-
供暖
自供暖
-
年代
2007
-
发布
2025-06-03
-
地铁
距4号线联庄站约494米
-
咨询总首付
首付约248.9万
首付税费及佣金情况 -
深度测评
小区彩虹城(滨江-滨盛)
-
更多
楼户比、楼层高度、交易历史、抵押信息
-
核验码
200901CV725646
房源描述(1)
-
核心卖点问经纪人
此房满五年税费少,装修精致可以拎包入住,江景房此房满五年税费少,装修精致可以拎包入住,江景房此房满五年税费少,装修精致可以拎包入住,江景房
-
业主心态问经纪人
此房源所属维护人✒陈嘉宇 欢迎来电详询➊➌➎➏➍➌➍➒➌➎⓿ ①我们门店就在小区楼下,上次房东上门挂牌/后面多次电话维护,对于房东个人自然也是比较熟悉了。 ②业主对我也是很信任,当面聊过对于房东卖方的心态也是比较清楚了解的。 ③房东已经看中房子,且已付定金,急需腾出房票,加回笼资金,想尽快处理这套,看中价格还可以谈的。
-
小区配套问经纪人
小区环境优雅,配套成熟,交通便利,居住舒适.
-
服务介绍问经纪人
当努力成为生活常态,生活就时刻充满期待。 深知每份订单皆是信任,品质和专业是我晒单的底气。 其实圈子很小,用心就是口碑,我最喜欢的4个字 咨询不收费,解答不要钱,带看不收钱 咨询➊➌➎➏➍➌➍➒➌➎⓿
-
税费分析房贷计算
交易流程:签订房卖买合同→→首付→→还贷→→→→审税过户→→交房我承诺:1.流程全程陪同,为您解决流程中所遇到的疑难2.我们提供一(二)手房,卖买(租赁)、上门挂牌免费咨询个人介绍:本人对、、税费知识,咨询➊➌➎➏➍➌➍➒➌➎⓿
周边配套
交通综合评分
查看全部超过杭州94.0%的小区
-
地铁公交
10.0
-
城际交通
4.0
本月均价 42151元/m²
环比上月 下跌 1.07%
同比去年 下跌 4.34%
猜你喜欢
同小区其它房源
户型齐全,主打户型方正,明厨,明卫,客厅朝南,全明格局,双卧朝南四居
彩虹城户型主要有100平-202平的户型方正,明厨,明卫,客厅朝南,全明格局,双卧朝南的四居 、123平-162平的户型方正,明厨,独立衣帽间,双阳台,主卧朝南的三居 、69平-160平的户型方正,明厨,独立衣帽间,双阳台的二居 。
*获取完整户型报告,同时会有免费语音讲解服务
-
44183元/㎡
本月挂牌均价
-
0.47%
环比上月
买房加房产交流群,省钱不踩雷
3000+人正在热聊
- 免费咨询
- 专业服务
- 区域解读
- 户型分析

