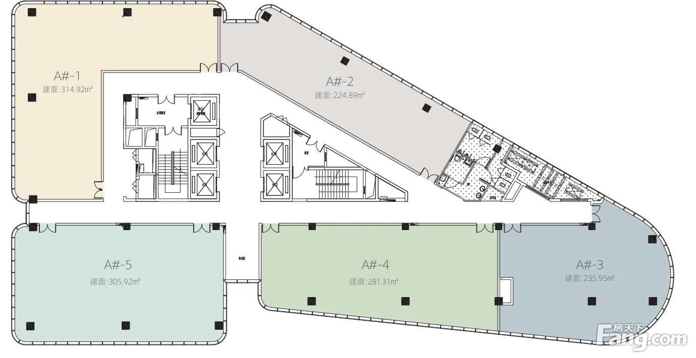
一层1360平另外有1000平一层民安东路地铁口精装交层高高
-
2.8元/平米·天
租金
-
精装修
装修
-
1360㎡
建筑面积
租房不踩坑
3000+人正在热聊
加入群聊
-
楼盘名称
HJC华骏中心
-
区域
鄞州
-
物业费
9元/平米·月
-
类型
纯写字楼
-
等级
暂无
-
挂牌时间
2024-11-10
-
支付方式
半年付
-
入驻时间
2023-06-01
费用明细
-
半年付
付款方式
-
2.8
租金(元/平米·天)
-
***
押金
-
***
服务费
- 房租含取暖费吗?
- 房租含物业费吗?
房源描述
-
房源亮点问经纪人
[房源描述] 1:出租面积: 1360平方米 层高4.5-5米 2:租金价格:2.8 元/平/天 2:房屋朝向:落地采光,朝南。 3:签约年限: 1-5年 4:装修情况:顶地空调装修,使用率高,户型方正,超强采光。 5:看房时间:随时看房 6:本栋写字楼另50-2000平面积出租,随时看房 本人拥有其他大量的房源信息,无需中介费 ,只要您有需求,只要您个电话, 具体欢迎来电话咨询,一个电话解决您找房的烦恼!只有想不到,没有我找不到的房源!
-
服务介绍问经纪人
专业从事策划写字楼办公选址 1.根据您的需求和预算,为您匹配合适的房源,综合为您考虑(面积楼层朝向、价格、同层企业 2:企业入驻相关政策补贴申 3:协助签订房屋合同 4:租赁后期服务与维护 无中介费用
-
周边配套问经纪人
配套设施:室内有隔间,全套家具,免费会议室,咖啡,零食,前台接待,独立空调24,形象墙,网络接口入户3网通, 双开玻璃门禁,周边配套有银行, 便利店,休闲购物商场,咖啡厅,酒店,商业气息浓厚, 周边设施完善。服务介绍:全程服务,前期咨询,现场看房,写字楼仪价,签订合同,公司注册,公司装修,全程免费服务不收取任何费用!拒绝虚假房源!为您匹配到合适房源.
-
交通出行问经纪人
地处核心位置,性价比较高, 户型方正,采光好,精装修,得房率高,周边商业商务配套齐全,交通便利有多条地铁及公交线路,物业服务好。
- 免费咨询
- 专业服务
- 区域解读
- 户型分析
免责声明:房源信息由网站用户提供,其真实性、合法性由信息提供者负责,最终以政府部门登记备案为准。本网站内容凡涉及面积单位均为建筑面积,本网站不声明或保证内容之正确性和可靠性,租赁该房屋时,请谨慎核查。


