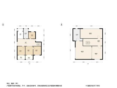
锦都花苑 楼中楼,带车库,楼下98.85平楼上58.11平
-
65万
总价
-
4室1厅
户型
-
156.96㎡
建筑面积
-
单价
4142元/平米
- 挂牌价格解析
-
楼层
高楼层/6层
- 咨询楼层
-
套内
暂无数据
- 咨询套内使用面积
-
楼型
板楼
-
朝向
南北
-
装修
简装
-
供暖
自供暖
-
发布
2025-11-04
-
地铁
距2号线钟秀西路站约125米
-
深度测评
小区锦都花苑(崇川-五洲国际广场)
-
更多
楼户比、楼层高度、交易历史、抵押信息
周边配套
地址:南通市濠西路99号
交通综合评分
查看全部4.0
“一般”
超过南通59.5%的小区
-
地铁公交
10.0
本月均价 8517元/m²
环比上月 下跌 0.94%
同比去年 下跌 3.84%
猜你喜欢
同小区其它房源
户型齐全,主打户型方正,明卫,明厨,双阳台二居
锦都花苑户型主要有92平-98平的户型方正,明卫,明厨,双阳台的二居 、94平-150平的户型方正,明厨,明卫的三居 、138平-175平的明厨,明卫,双阳台,双卧朝南的四居 。
*获取完整户型报告,同时会有免费语音讲解服务
-
12826元/㎡
本月挂牌均价
-
2.46%
环比上月
免责声明:房源信息由网站用户提供,其真实性、合法性由信息提供者负责,最终以政府部门登记备案为准。本网站不声明或保证内容之正确性和可靠性,购买该房屋时,请谨慎核查。入学情况仅凭历史经验总结,在此不承诺升学事宜。请您在签订合同之前,切勿支付任何形式的费用,以免上当受骗。



