全程聚焦 三中旁臻如府买的就是圈层 第四代住宅 车接车送
-
468万
总价
-
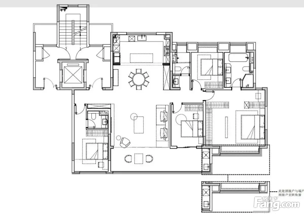
4室2厅3卫
户型
-
188㎡
建筑面积
-
单价
24894元/平米
- 挂牌价格解析
-
楼层
底层/11层
- 咨询楼层
-
套内
暂无数据
- 咨询套内使用面积
-
楼型
板楼
-
朝向
南
-
装修
豪华装修
-
年代
2020
-
发布
2025-08-21
-
地铁
距2号线五一路站约704米
-
深度测评
小区臻如府(崇川-观音山新城)
-
更多
楼户比、楼层高度、交易历史、抵押信息
房源描述(1)
周边配套
地址:五一路与学田南路交汇处
本月均价 暂无均价
环比上月 持平
同比去年 持平 持平
-
9763元/㎡
本月挂牌均价
-
1.89%
环比上月
- 免费咨询
- 专业服务
- 区域解读
- 户型分析
免责声明:房源信息由网站用户提供,其真实性、合法性由信息提供者负责,最终以政府部门登记备案为准。本网站不声明或保证内容之正确性和可靠性,购买该房屋时,请谨慎核查。入学情况仅凭历史经验总结,在此不承诺升学事宜。请您在签订合同之前,切勿支付任何形式的费用,以免上当受骗。


