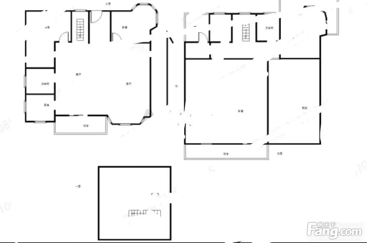
(超大花园500平)钱隆山庄二期,产证369平,已重新改建
-
2700万
总价
-
5室2厅5卫
户型
-
369㎡
建筑面积
买房加房产交流群,省钱不踩雷
3000+人正在热聊
加入群聊
-
单价
73171元/平米
- 挂牌价格解析
-
楼层
3层
- 咨询楼层
-
套内
368㎡
- 咨询套内使用面积
-
楼型
独栋
-
朝向
南
-
装修
毛坯
-
年代
1995
-
发布
2026-03-30
-
地铁
暂无数据
-
咨询总首付
首付约1175.5万
首付税费及佣金情况 -
深度测评
小区钱隆山庄(鄞州-东钱湖)
-
更多
楼户比、楼层高度、交易历史、抵押信息
房源描述(1)
-
核心卖点问经纪人
本人诚心销售拒绝虚假。销售多套钱隆山庄独栋别墅。欢迎您了解咨询。这套价格处于低谷期,位置安静环境优雅,交通便利四通八达。走进小区会感觉非常轻松和谐内有环绕景观。安安静静没有杂乱噪音。对于安全性是毋庸置疑,品质可以体现。房屋是八面采光设计合理。
-
业主心态问经纪人
业主很信任我,我能了解业主卖房新的动态。目前市场交易量平稳,政策已经基本稳定,是市场触底入手的好时机!
-
小区配套问经纪人
小区环境优雅,配套成熟,周边交通便利,居住舒适。
-
服务介绍问经纪人
翻到这就停休息一会,您不是先找到好房子而是先找到一位好的房产经纪人。全心全意‘竭诚为您服务。所有一切,只愿您满意收货而归。
-
税费分析房贷计算
契税:居民家庭购买首套宅90平米(含)以下的享受1%契税,90平米1.5%:居民家庭购买二套改善型住房90平米(含)以下享受1%契税,90平米以上的2%:居民家庭购买第三赛及以上的住房3%契税;购买非住宅的3%契税.
周边配套
地址:东钱湖钱隆山庄2号
交通综合评分
查看全部4.7
“一般”
超过宁波41.7%的小区
-
地铁公交
5.0
-
驾车出行
9.0
猜你喜欢
同小区其它房源
-
23445元/㎡
本月挂牌均价
-
0.49%
环比上月
买房加房产交流群,省钱不踩雷
3000+人正在热聊
加入群聊
- 免费咨询
- 专业服务
- 区域解读
- 户型分析
免责声明:房源信息由网站用户提供,其真实性、合法性由信息提供者负责,最终以政府部门登记备案为准。本网站不声明或保证内容之正确性和可靠性,购买该房屋时,请谨慎核查。入学情况仅凭历史经验总结,在此不承诺升学事宜。请您在签订合同之前,切勿支付任何形式的费用,以免上当受骗。


