维科馨院3室2厅2卫南朝向207.0万元/套出售
-
207万
总价
-
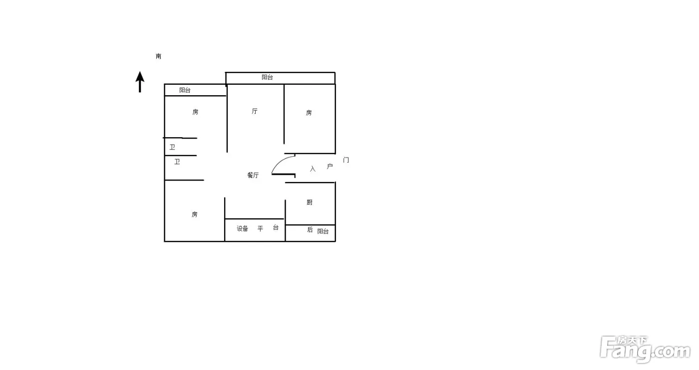
3室2厅2卫
户型
-
127.48㎡
建筑面积
买房加房产交流群,省钱不踩雷
3000+人正在热聊
加入群聊
-
单价
16238元/平米
- 挂牌价格解析
-
楼层
高层/25层
- 咨询楼层
-
套内
暂无数据
- 咨询套内使用面积
-
朝向
南
-
装修
毛坯
-
年代
2010
-
发布
2026-04-14
-
地铁
暂无数据
-
咨询总首付
首付约81.7万
首付税费及佣金情况 -
深度测评
小区维科馨院(海曙-联丰路)
-
更多
楼户比、楼层高度、交易历史、抵押信息
房源描述(1)
-
核心卖点
小区环境好,小区近学校,幼儿园,公交车站,,,,
-
业主心态
房东诚心售,有诚心客户,价可以谈,,,,,,
周边配套
地址:薛家南路88号
交通综合评分
查看全部6.9
“较好”
超过宁波24.8%的小区
-
地铁公交
9.0
-
驾车出行
7.0
-
城际交通
4.0
本月均价 19187元/m²
环比上月 上涨 1.32%
同比去年 下跌 13.31%
猜你喜欢
同小区其它房源
户型齐全,主打南北通透,户型方正,卧室朝南三居
维科馨院户型主要有96平-108平的南北通透,户型方正,卧室朝南的三居 、127平-274平的南北通透,主卧带卫,主卧朝南,全明格局的四居 、192平-238平的独立车库,独立庭院的其他居 。
*获取完整户型报告,同时会有免费语音讲解服务
-
18560元/㎡
本月挂牌均价
-
1.33%
环比上月
买房加房产交流群,省钱不踩雷
3000+人正在热聊
加入群聊
- 免费咨询
- 专业服务
- 区域解读
- 户型分析
免责声明:房源信息由网站用户提供,其真实性、合法性由信息提供者负责,最终以政府部门登记备案为准。本网站不声明或保证内容之正确性和可靠性,购买该房屋时,请谨慎核查。入学情况仅凭历史经验总结,在此不承诺升学事宜。请您在签订合同之前,切勿支付任何形式的费用,以免上当受骗。


