灵峰小区西区3室2厅2卫南朝向128.0万元/套出售
-
128万
总价
-
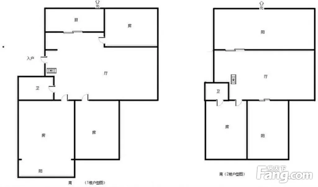
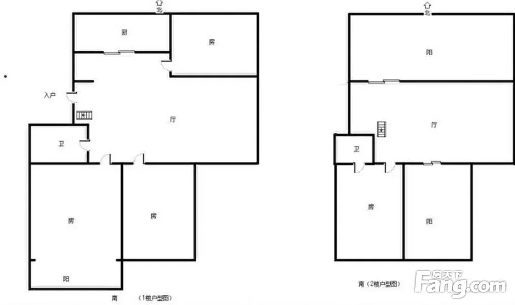
3室2厅2卫
户型
-
126㎡
建筑面积
买房加房产交流群,省钱不踩雷
3000+人正在热聊
加入群聊
-
单价
10159元/平米
- 挂牌价格解析
-
楼层
顶层/5层
- 咨询楼层
-
套内
暂无数据
- 咨询套内使用面积
-
朝向
南
-
装修
精装修
-
年代
2002
-
发布
2026-05-18
-
地铁
距8号线洪塘站约821米
-
咨询总首付
首付约50.9万
首付税费及佣金情况 -
深度测评
小区灵峰小区西区(江北-洪塘)
-
更多
楼户比、楼层高度、交易历史、抵押信息
房源描述(1)
-
核心卖点
位于洪塘菜市场旁,附近有海德商业中心,江北恒一广场,未来八号线地铁站位于小区附近。
-
业主心态
房东诚心出售,如果客户看中了,价格是可以进行谈判的,房东也希望碰到诚心客户。
周边配套
地址:江北区洪塘西路
交通综合评分
查看全部6.2
“较好”
超过宁波54.0%的小区
-
地铁公交
5.0
-
驾车出行
10.0
-
城际交通
4.0
本月均价 11878元/m²
环比上月 下跌 0.44%
同比去年 下跌 17.11%
猜你喜欢
同小区其它房源
户型齐全,主打户型方正,明厨,明卫,主卧朝南二居
灵峰花园户型主要有71平-86平的户型方正,明厨,明卫,主卧朝南的二居 、91平-132平的户型方正,明厨,双卧朝南的三居 。
*获取完整户型报告,同时会有免费语音讲解服务
-
16874元/㎡
本月挂牌均价
-
1.76%
环比上月
买房加房产交流群,省钱不踩雷
3000+人正在热聊
加入群聊
- 免费咨询
- 专业服务
- 区域解读
- 户型分析
免责声明:房源信息由网站用户提供,其真实性、合法性由信息提供者负责,最终以政府部门登记备案为准。本网站不声明或保证内容之正确性和可靠性,购买该房屋时,请谨慎核查。入学情况仅凭历史经验总结,在此不承诺升学事宜。请您在签订合同之前,切勿支付任何形式的费用,以免上当受骗。


