荣安佳境4室2厅2卫南朝向250.0万元/套出售
-
250万
总价
-
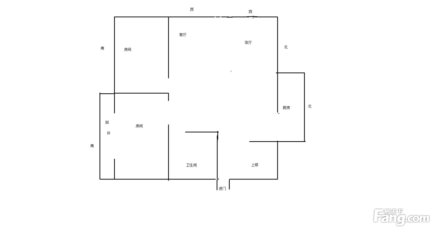
4室2厅2卫
户型
-
131.76㎡
建筑面积
买房加房产交流群,省钱不踩雷
3000+人正在热聊
加入群聊
-
单价
18974元/平米
- 挂牌价格解析
-
楼层
顶层/6层
- 咨询楼层
-
套内
暂无数据
- 咨询套内使用面积
-
朝向
南
-
装修
精装修
-
年代
2003
-
发布
2026-04-09
-
地铁
距2号线云霞路站约653米
-
咨询总首付
首付约98.6万
首付税费及佣金情况 -
深度测评
小区荣安佳境(海曙-南门)
-
更多
楼户比、楼层高度、交易历史、抵押信息
-
核验码
202304043302030019
房源描述(1)
-
核心卖点
房子位置好 采光好 交通方便 小区环境优美 设施齐全
-
业主心态
房东诚心出售 另有发展 多多推广............
周边配套
地址:宝善路上与苍松路交汇处
交通综合评分
查看全部7.9
“较好”
超过宁波39.5%的小区
-
地铁公交
10.0
-
驾车出行
9.0
-
城际交通
4.0
本月均价 16817元/m²
环比上月 上涨 0.18%
同比去年 下跌 12.06%
猜你喜欢
同小区其它房源
户型齐全,主打户型方正,明卫,明厨三居
荣安佳境户型主要有84平-122平的户型方正,明卫,明厨的三居 、136平-182平的户型方正,明厨,明卫,主卧朝南的四居 、83平-86平的户型方正,明卫,明厨,客厅朝南的二居 。
*获取完整户型报告,同时会有免费语音讲解服务
-
19804元/㎡
本月挂牌均价
-
1.14%
环比上月
买房加房产交流群,省钱不踩雷
3000+人正在热聊
加入群聊
- 免费咨询
- 专业服务
- 区域解读
- 户型分析
免责声明:房源信息由网站用户提供,其真实性、合法性由信息提供者负责,最终以政府部门登记备案为准。本网站不声明或保证内容之正确性和可靠性,购买该房屋时,请谨慎核查。入学情况仅凭历史经验总结,在此不承诺升学事宜。请您在签订合同之前,切勿支付任何形式的费用,以免上当受骗。


