海曙 天封社区 3室1厅 65.00㎡ 123万
-
99万元
总价
-
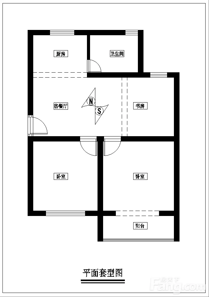
3室1厅1卫
户型
-
65㎡
建筑面积
买房加房产交流群,省钱不踩雷
3000+人正在热聊
加入群聊
-
单价
15231元/平米
- 挂牌价格解析
-
楼层
顶层/6层
- 咨询楼层
-
套内
暂无数据
- 咨询套内使用面积
-
朝向
南
-
发布
2026-03-09
-
地铁
距4号线兴宁桥西站约763米
-
咨询总首付
首付约43.4万
首付税费及佣金情况 -
深度测评
小区天封社区(海曙-天一广场)
-
更多
楼户比、楼层高度、交易历史、抵押信息
业主自评
-
花艳惊上春946
加入房天下420天
接电时间:9:00-18:00
房子离天一广场城隍庙等商圈步行5**,周边有地铁1-2-4线出行方便,宁波三江口最核心地块。
房子离天一广场城隍庙等商圈步行5**,周边有地铁1-2-4线出行方便,宁波三江口最核心地块。
周边配套
地址:小沙泥街
交通综合评分
查看全部7.6
“较好”
超过宁波29.4%的小区
-
地铁公交
10.0
-
驾车出行
8.0
-
城际交通
4.0
本月均价 19724元/m²
环比上月 下跌 0.54%
同比去年 下跌 17.05%
猜你喜欢
同小区其它房源
户型齐全,主打户型方正,明厨,客厅朝南,主卧朝南二居
天封社区户型主要有44平-97平的户型方正,明厨,客厅朝南,主卧朝南的二居 、68平-86平的户型方正,明厨,客厅朝南的三居 、46平-46平的户型方正,明厨,明卫,主卧朝南的一居 。
*获取完整户型报告,同时会有免费语音讲解服务
-
21656元/㎡
本月挂牌均价
-
0.19%
环比上月
买房加房产交流群,省钱不踩雷
3000+人正在热聊
加入群聊
联系业主
免责声明:房源信息由网站用户提供,其真实性、合法性由信息提供者负责,最终以政府部门登记备案为准。本网站不声明或保证内容之正确性和可靠性,购买该房屋时,请谨慎核查。入学情况仅凭历史经验总结,在此不承诺升学事宜。请您在签订合同之前,切勿支付任何形式的费用,以免上当受骗。

