滨江钱塘江边,楼层好户型方正 一线江景大宅
-
950万
总价
-
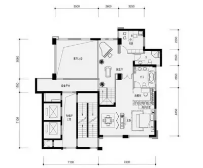
5室2厅
户型
-
198.03㎡
建筑面积
买房加房产交流群,省钱不踩雷
3000+人正在热聊
加入群聊
-
单价
47973元/平米
- 挂牌价格解析
-
楼层
高楼层/32层
- 咨询楼层
-
套内
162.39㎡
- 咨询套内使用面积
-
楼型
板塔结合
-
朝向
东南
-
装修
其他
-
供暖
自供暖
-
发布
2025-06-05
-
地铁
距6号线(杭富线)西浦路站约848米
-
咨询总首付
首付约314.6万
首付税费及佣金情况 -
深度测评
小区钱塘山水(滨江-浦沿)
-
更多
楼户比、楼层高度、交易历史、抵押信息
-
核验码
250623RW083277
房源描述(1)
周边配套
地址:滨江区东信大道与闻涛路交叉口
交通综合评分
查看全部6.7
“较好”
超过杭州46.1%的小区
-
地铁公交
10.0
-
驾车出行
9.0
本月均价 45416元/m²
环比上月 下跌 0.39%
同比去年 下跌 10.66%
猜你喜欢
同小区其它房源
户型齐全,主打二居
钱塘山水户型主要有88平-89平的的二居 、87平-90平的户型方正,明厨,双卧朝南的三居 、88平-218平的明卫,客厅朝南,双卧朝南,主卧朝南的四居 。
*获取完整户型报告,同时会有免费语音讲解服务
-
35570元/㎡
本月挂牌均价
-
0.01%
环比上月
买房加房产交流群,省钱不踩雷
3000+人正在热聊
加入群聊
- 免费咨询
- 专业服务
- 区域解读
- 户型分析
免责声明:房源信息由网站用户提供,其真实性、合法性由信息提供者负责,最终以政府部门登记备案为准。本网站不声明或保证内容之正确性和可靠性,购买该房屋时,请谨慎核查。入学情况仅凭历史经验总结,在此不承诺升学事宜。请您在签订合同之前,切勿支付任何形式的费用,以免上当受骗。

