坝上街环球中心 105.87平 98.5万 低于市场价60万
-
180万
总价
-
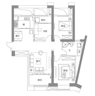
3室2厅1卫
户型
-
104㎡
建筑面积
买房加房产交流群,省钱不踩雷
3000+人正在热聊
-
单价
17308元/平米
- 挂牌价格解析
-
楼层
低层/49层
- 咨询楼层
-
套内
暂无数据
- 咨询套内使用面积
-
楼型
板楼
-
朝向
南
-
装修
简装修
-
年代
2015
-
发布
2025-11-15
-
地铁
距1号线大东门站约733米
-
咨询总首付
首付约47.1万
首付税费及佣金情况 -
深度测评
小区坝上街环球中心(瑶海-和平广场)
-
更多
楼户比、楼层高度、交易历史、抵押信息
-
核验码
240419UL001764
房源描述(1)
-
核心卖点问经纪人
核心卖点 1.小区的环境决定于人的心情,室内的格局诠释着家的情调,本房源宽敞、温馨,采光极佳,满屋子都洋溢着阳光的味道。 2.小区安逸而幽静,建筑风格是时尚的,有挑高和平层,绿化率高,让人情不自禁的有种舒适清爽之感。 3.周边配套设施齐全,紧邻地铁口交通出行非常方便,给您一个温馨舒适的家。 4.此房为售楼部一手房出售,证件齐全,可以轻松交易,不收取任何中间费用,如果您心动了,如果您有意愿了,您可以随时打电话来看房,我这边全天为您服务。 5.小区配套双,采用知名教育机构托管,而且周边中都是可以就读的,不用为孩子上学而担心。 6.所有房源都是精装修交付,让您买的放心,住的省心
-
业主心态问经纪人
房主是因为公司资金周转问题,现在着急出售 手里也还有其他几套房子在我这里出售,房屋的产权我已经认真核实过,且房主诚心出售,您有看房需求,房主会很积极配合。
-
服务介绍问经纪人
本人从事行业20年,本公司立足于合肥二手房市场多年,旨在为客户提供更优质,更专业的服务,代客户办理过户,抵押,贷款等业务。 如有需求,欢迎致电,24为您服务!客户满意,我们的求
-
户型解读问经纪人
【1】户型简介:经典三房,南北通透 ,客厅带阳台,业主急售。 【2】装修状况;房子精装,自住装修。 【3】楼层:总高6楼,在中间楼层,采光极好。 【4】位置;此房位于小区中心位置 【5】税费:证已满5年
周边配套
交通综合评分
查看全部超过合肥96.0%的小区
-
地铁公交
10.0
-
驾车出行
10.0
本月均价 15431元/m²
环比上月 下跌 2.39%
同比去年 下跌 16.44%
猜你喜欢
同小区其它房源
户型齐全,主打采光充足,主卧朝南三居
坝上街环球中心户型主要有100平-147平的采光充足,主卧朝南的三居 、86平-109平的采光充足,卧室朝南的二居 。
*获取完整户型报告,同时会有免费语音讲解服务
-
14214元/㎡
本月挂牌均价
-
0.75%
环比上月
买房加房产交流群,省钱不踩雷
3000+人正在热聊
- 免费咨询
- 专业服务
- 区域解读
- 户型分析

