新华御湖上园 219.51平5居 毛坯别墅 视野无遮挡
-
680万
总价
-
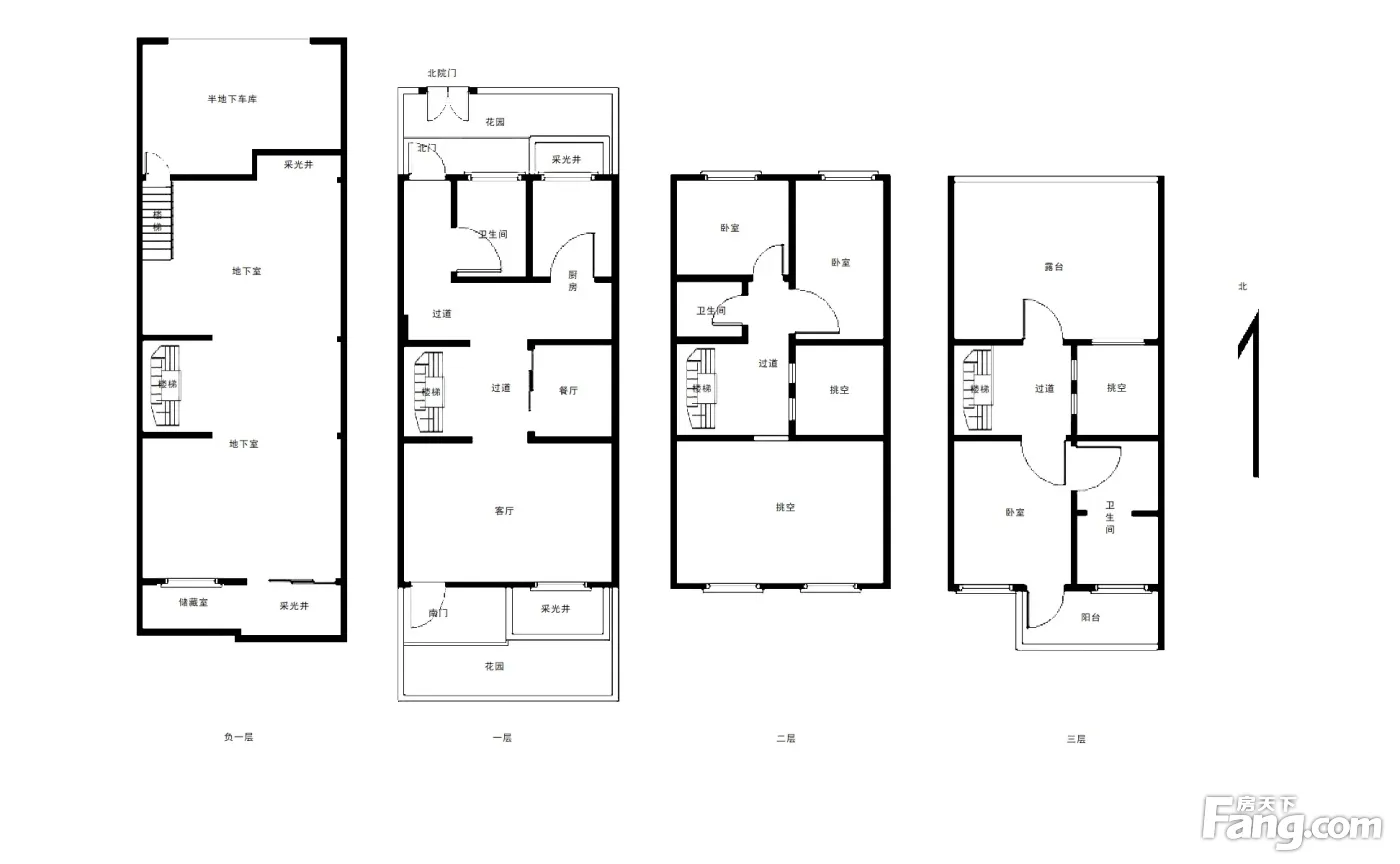
5室2厅4卫
户型
-
219.51㎡
建筑面积
买房加房产交流群,省钱不踩雷
3000+人正在热聊
-
单价
30978元/平米
- 挂牌价格解析
-
楼层
底层/1层
- 咨询楼层
-
套内
213.16㎡
- 咨询套内使用面积
-
楼型
板楼
-
朝向
南北
-
装修
毛坯
-
年代
2015
-
发布
2025-12-06
-
地铁
距4号线复兴集站约865米
-
咨询总首付
首付约204.4万
首付税费及佣金情况 -
深度测评
小区新华御湖上园(高新-蜀山新产业园)
-
更多
楼户比、楼层高度、交易历史、抵押信息
-
核验码
250324ND001314
房源描述(1)
-
核心卖点问经纪人
相信为您推荐的这套房子您一定会满意,赶快行动吧,先到先得! 房屋年代∶2015年,房屋面积∶219.51平方米,朝向∶南北通透 1. 小区配备良好物业管理,让你享受宾至如归的服务; 2. 小区人文素质高,是您的居家的品质选择; 3. 小区环境安静舒适,让您拥有高品质的生活环境; 4. 小区绿化高,绿树成荫鸟语花香让您随时呼吸到新鲜空气。
-
业主心态问经纪人
产权清晰,业主素质很高,诚心出售,房子无任何抵押以及经济纠纷
-
小区配套问经纪人
【生活配套】:旁边就是大型菜市场,生活十分方面,小区里面、旁边都有幼儿园。 【车位情况】:小区内设有停车场,周边停车也十分方便,解决停车难的问题。 【安全情况】:小区保安24巡逻,安保措施好,物业管理,让您住的舒心、安心。
-
服务介绍问经纪人
本人从事房多年,欢迎随时电话咨询,相信我的,为您置业安家保驾护航。更多精品房源,请点击我的头像。
-
税费分析房贷计算
(一) 购买家庭首套住房:契税:对个人购买家庭住房(家庭成员范围包括购房人、配偶以及未成年子女,下同),面积为140平方米及以下的,减按1%的税率征收契税;面积为140平方米以上的,减按1.5%的税率征收契税。 (二) 购买家庭第二套住房:契税:对个人购买家庭第二套改善性住房,面积为140平方米及以下的,减按1%的税率征收契税:面积为140平方米以上的,减按2%的税率征收契税。 (三) 购买家庭第三套及以上住房:契税:按3%的税率征收契税。个税:按1%的税率征收。
周边配套
交通综合评分
查看全部超过合肥17.0%的小区
-
地铁公交
9.0
-
驾车出行
10.0
本月均价 17134元/m²
环比上月 下跌 2.87%
同比去年 下跌 4.84%
猜你喜欢
同小区其它房源
户型齐全,主打户型方正,明卫,明厨,主卧朝南一居
新华御湖上园户型主要有45平-49平的户型方正,明卫,明厨,主卧朝南的一居 、69平-74平的户型方正,明卫,主卧朝南的二居 、204平-267平的户型方正,客厅朝南的四居 。
*获取完整户型报告,同时会有免费语音讲解服务
-
19118元/㎡
本月挂牌均价
-
0.62%
环比上月
买房加房产交流群,省钱不踩雷
3000+人正在热聊
- 免费咨询
- 专业服务
- 区域解读
- 户型分析


