诚意出售 万科物业精装修 无抵押无户口 随时交易
-
135万
总价
-
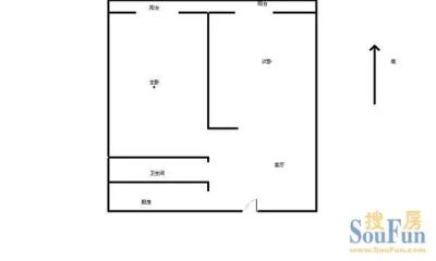
2室2厅
户型
-
98.74㎡
建筑面积
买房加房产交流群,省钱不踩雷
3000+人正在热聊
-
单价
13673元/平米
- 挂牌价格解析
-
楼层
高楼层/38层
- 咨询楼层
-
套内
98.74㎡
- 咨询套内使用面积
-
楼型
板塔结合
-
朝向
南北
-
装修
精装
-
供暖
集中供暖
-
年代
2014
-
发布
2017-05-18
-
地铁
距5号线体育中心站约640米
-
咨询总首付
首付约33.2万
首付税费及佣金情况 -
深度测评
小区奕聪花园(南开-体育中心街)
-
更多
楼户比、楼层高度、交易历史、抵押信息
房源描述(1)
-
核心卖点问经纪人
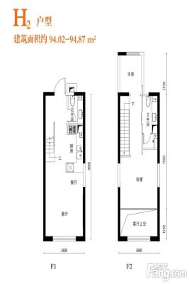
此房为正规2室,跃层,精装修,保持的好,小区环境好 奕聪花园位于南开区红旗南路快速路北侧。分两期进行开发。地上建筑面积:15万平米。产品为联排别墅和高层,一期为别墅,共7排,6-10联排,共52套;二期为高层,共9栋,27-38层到顶。此房是2016年开盘的。小区环境好 公交:彩虹花园公交站,时代奥城公交站和宾水西道公交站,有多条公交线,通往和平区,河西区和开发区等多个地方,另外也可以到达天津站和天津西站。地铁:五号线体育馆站和凌宾路站,六号线水上公园东路地铁站
-
业主心态问经纪人
业主很信任我,我能了解业主卖房新的动态。目前市场交易量平稳,政策已经基本稳定,是市场触底入手的好时候。请不要错过性价比高的好房。
-
小区配套问经纪人
此房所在小区位置配套齐,距离小区800米左右就是水上公园和动物园,小区500米就是工商银行和农业银行,小区300米还有几家小商铺,还是比较便利的。距离小区600米有多条公交线路,例如12路、878路、951路等。
-
服务介绍问经纪人
本人张娜 做房产多年,一直本着专业的房产知识,为您服务,我会在短的时间内帮您买到 满意的房子,不让您错失任何好房子,欢迎随时拨打我电话。
-
税费分析房贷计算
过五年唯I,税费低,一房一税,要了解本房税费,欢迎 随时联系我。
-
户型解读问经纪人
通透户型,采光好,观景房,居住舒适,性价比高
周边配套
交通综合评分
查看全部超过天津11.4%的小区
-
地铁公交
10.0
-
驾车出行
7.0
本月均价 16502元/m²
环比上月 下跌 7.79%
同比去年 下跌 33.17%
猜你喜欢
同小区其它房源
户型齐全,主打南北通透,户型方正,主卧朝南三居
奕聪花园户型主要有162平-190平的南北通透,户型方正,主卧朝南的三居 、99平-104平的动静分离,挑高客厅的一居 、91平-141平的户型方正,客厅朝南,主卧朝南的二居 。
*获取完整户型报告,同时会有免费语音讲解服务
-
25459元/㎡
本月挂牌均价
-
0.86%
环比上月
买房加房产交流群,省钱不踩雷
3000+人正在热聊
- 免费咨询
- 专业服务
- 区域解读
- 户型分析


