南湖边 14中+滨湖 3层楼中楼带露台 富丽华庭255平5居
-
460万
总价
-
4室2厅3卫
户型
-
255㎡
建筑面积
买房加房产交流群,省钱不踩雷
3000+人正在热聊
-
单价
18039元/平米
- 挂牌价格解析
-
楼层
顶层/11层
- 咨询楼层
-
套内
240㎡
- 咨询套内使用面积
-
楼型
板楼
-
朝向
东
-
装修
精装修
-
年代
2004
-
发布
2025-12-05
-
地铁
距3号线滨湖路站约717米
-
深度测评
小区富丽华庭(青秀-金湖片区)
-
更多
楼户比、楼层高度、交易历史、抵押信息
房源描述(1)
-
核心卖点问经纪人
1、看房方便 2、小区绿化好、很安静居住很舒服、停车宽裕、出行方便 3、房子采光好、南北通透、房间都很敞亮、户型方正不浪费 4、周边有大型市、和菜市,买菜和买生活用品很齐全 5、交通方便、一号线多路公交到达南宁各个地方 6、纯手工拍照、图片很真实、好房子不等人、请尽快联系我看房 7、如果这套不合适,我这里还有很多房源
-
业主心态问经纪人
业主很信任我,我能了解业主卖房新的动态。目前市场交易量平稳,政策已经基本稳定,是市场触底入手的好时候。请不要错过性价比高的好房。
-
小区配套问经纪人
小区地理位置好 绿化覆盖率高 门口就有公交车站 小区内设有健身器材区,小型跑道,为住户提供健身休闲的地方 小区周边有多个幼儿园,小学和中学,大型超市,商业街,农贸市场等教育生活配套齐全。
-
服务介绍问经纪人
本人做房产多年,本着专业的房产知识,为您服务,我会在短的时间内帮您买好满意的房子,不让您错失任何好房子,更不让您每天为买房的事烦心,欢迎随时联系!
-
税费分析房贷计算
此房源免综合税,满五年,有个税1%,契税:首套1.5% 二套2%三套及以上3%
-
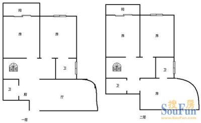
户型解读问经纪人
此房源户型南北通透,方正通风,采光好,居住非常舒适。
周边配套
交通综合评分
查看全部超过南宁83.9%的小区
-
地铁公交
10.0
本月均价 18613元/m²
环比上月 下跌 3.58%
同比去年 下跌 10.24%
猜你喜欢
同小区其它房源
户型齐全,主打户型方正,明卫,明厨三居
富丽华庭户型主要有130平-137平的户型方正,明卫,明厨的三居 、152平-178平的户型方正,明厨,明卫,客厅朝南的四居 。
*获取完整户型报告,同时会有免费语音讲解服务
-
12280元/㎡
本月挂牌均价
-
0.26%
环比上月
买房加房产交流群,省钱不踩雷
3000+人正在热聊
- 免费咨询
- 专业服务
- 区域解读
- 户型分析


