绿城 桃花源 合院 小区环境优美
-
602万
总价
-
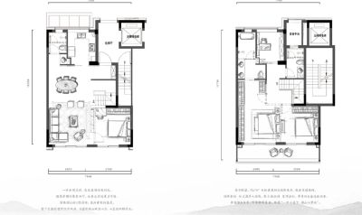
4室2厅
户型
-
216.6㎡
建筑面积
买房加房产交流群,省钱不踩雷
3000+人正在热聊
加入群聊
-
单价
27794元/平米
- 挂牌价格解析
-
楼层
低楼层/2层
- 咨询楼层
-
套内
暂无数据
- 咨询套内使用面积
-
朝向
南
-
装修
毛坯
-
供暖
暂无数据
-
发布
2024-01-03
-
地铁
距4号线小洋江站约1179米
-
咨询总首付
首付约262.3万
首付税费及佣金情况 -
深度测评
小区绿城·雲栖桃花源(鄞州)
-
更多
楼户比、楼层高度、交易历史、抵押信息
房源描述(1)
周边配套
地址:东钱湖大道与玉泉南路交叉口
交通综合评分
查看全部6.6
“较好”
超过宁波0.0%的小区
-
地铁公交
9.0
-
驾车出行
10.0
本月均价 暂无均价
环比上月 持平
同比去年 持平 持平
猜你喜欢
同小区其它房源
买房加房产交流群,省钱不踩雷
3000+人正在热聊
加入群聊
- 免费咨询
- 专业服务
- 区域解读
- 户型分析
免责声明:房源信息由网站用户提供,其真实性、合法性由信息提供者负责,最终以政府部门登记备案为准。本网站不声明或保证内容之正确性和可靠性,购买该房屋时,请谨慎核查。入学情况仅凭历史经验总结,在此不承诺升学事宜。请您在签订合同之前,切勿支付任何形式的费用,以免上当受骗。


