丹凤二村 近医院 出行方便 正南朝向 商业配套成熟 临地铁
-
90万
总价
-
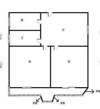
2室2厅1卫
户型
-
53.35㎡
建筑面积
买房加房产交流群,省钱不踩雷
3000+人正在热聊
-
单价
16870元/平米
- 挂牌价格解析
-
楼层
高层/6层
- 咨询楼层
-
套内
暂无数据
- 咨询套内使用面积
-
朝向
南
-
装修
简装修
-
年代
1998
-
发布
2026-05-05
-
地铁
距3号线儿童公园站约246米
-
咨询总首付
首付约36万
首付税费及佣金情况 -
深度测评
小区丹凤二村(鄞州-白鹤)
-
更多
楼户比、楼层高度、交易历史、抵押信息
-
核验码
202509233302120044
房源描述(1)
-
核心卖点
【房屋介绍】两室两厅一卫,户型方正,无浪费面积;餐厅客厅可分离,生活动线合理。高层位置,视野开阔,无遮挡,光线充足,朝向良好,通风采光俱佳。53.35平米,空间利用高效,适合家庭居住。步梯房,安静舒适,楼层好,朝南向,享受阳光明媚。 【周边环境】周边配套设施齐全,生活便利,物业管理完善,保安24值班,保障安全。社区环境健康向上,邻里关系和谐,适宜居住。
-
业主心态
业主对我非常信任,与我建立了良好的合作关系。在看房前,我们愿意提前商讨,确保双方满意。业主积极配合,致力于促成双方友好沟通,让整个交易过程更加顺畅。对于房源,业主持有开放态度,期待有缘人发现它的独特魅力。
周边配套
交通综合评分
查看全部超过宁波87.8%的小区
-
地铁公交
10.0
-
驾车出行
10.0
-
城际交通
4.0
本月均价 18065元/m²
环比上月 持平
同比去年 下跌 12.29%
-
24392元/㎡
本月挂牌均价
-
1.94%
环比上月
买房加房产交流群,省钱不踩雷
3000+人正在热聊
- 免费咨询
- 专业服务
- 区域解读
- 户型分析





