荣安和院3室2厅2卫南朝向430.0万元/套出售
-
430万
总价
-
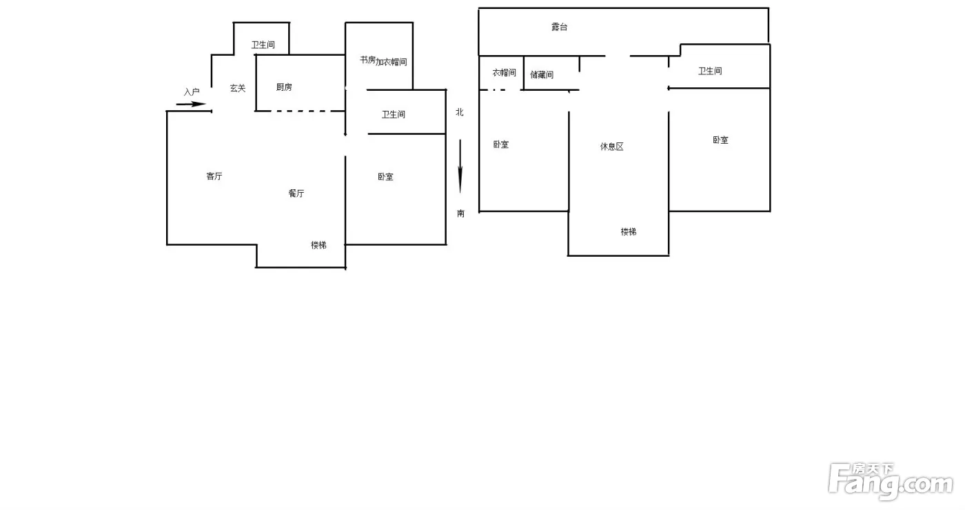
3室2厅2卫
户型
-
116㎡
建筑面积
买房加房产交流群,省钱不踩雷
3000+人正在热聊
加入群聊
-
单价
37069元/平米
- 挂牌价格解析
-
楼层
顶层/11层
- 咨询楼层
-
套内
暂无数据
- 咨询套内使用面积
-
朝向
南
-
装修
精装修
-
年代
2008
-
发布
2026-04-29
-
地铁
距4号线嵩江东路站约838米
-
咨询总首付
首付约169.7万
首付税费及佣金情况 -
深度测评
小区荣安和院(鄞州-印象城)
-
更多
楼户比、楼层高度、交易历史、抵押信息
房源描述(1)
-
核心卖点
位置好,配套成熟,
-
业主心态
房东诚心出售
周边配套
地址:中河街道嵩江东路306号
交通综合评分
查看全部7.0
“较好”
超过宁波39.5%的小区
-
地铁公交
10.0
-
驾车出行
10.0
本月均价 24809元/m²
环比上月 下跌 1.74%
同比去年 下跌 12.72%
猜你喜欢
同小区其它房源
户型齐全,主打户型方正,明卫,明厨,客厅朝南,主卧朝南三居
荣安和院户型主要有96平-146平的户型方正,明卫,明厨,客厅朝南,主卧朝南的三居 、62平-100平的户型方正的二居 、63平-63平的客厅朝南的一居 。
*获取完整户型报告,同时会有免费语音讲解服务
-
24755元/㎡
本月挂牌均价
-
1.49%
环比上月
买房加房产交流群,省钱不踩雷
3000+人正在热聊
加入群聊
- 免费咨询
- 专业服务
- 区域解读
- 户型分析
免责声明:房源信息由网站用户提供,其真实性、合法性由信息提供者负责,最终以政府部门登记备案为准。本网站不声明或保证内容之正确性和可靠性,购买该房屋时,请谨慎核查。入学情况仅凭历史经验总结,在此不承诺升学事宜。请您在签订合同之前,切勿支付任何形式的费用,以免上当受骗。





