江北万达公寓1室1厅1卫南朝向45.0万元/套出售
-
45万
总价
-
1室1厅1卫
户型
-
53㎡
建筑面积
买房加房产交流群,省钱不踩雷
3000+人正在热聊
-
单价
8491元/平米
- 挂牌价格解析
-
楼层
低层/21层
- 咨询楼层
-
套内
暂无数据
- 咨询套内使用面积
-
朝向
南
-
装修
精装修
-
年代
2009
-
发布
2026-04-14
-
地铁
距4号线庄桥火车站约753米
-
咨询总首付
首付约17.8万
首付税费及佣金情况 -
深度测评
小区江北万达公寓(江北-江北万达)
-
更多
楼户比、楼层高度、交易历史、抵押信息
-
核验码
202505123302050013
房源描述(1)
-
核心卖点
业主诚心出售此房,欢迎您看房,如需了解其他信息请与我联系。 1、业主由于要换房,所以着急出售此套房子,寻找诚意买家。 2、业主配合随时看房,欢迎对房子有意者前来看房。业主委托诚心出售此房,欢迎您随时看房,如需了解其他信息请与我联系
-
业主心态
业主诚心出售此房,欢迎您看房,如需了解其他信息请与我联系。 1、业主由于要换房,所以着急出售此套房子,寻找诚意买家。 2、业主配合随时看房,欢迎对房子有意者前来看房。业主委托诚心出售此房,欢迎您随时看房,如需了解其他信息请与我联系
周边配套
交通综合评分
查看全部超过宁波65.8%的小区
-
地铁公交
10.0
-
城际交通
4.0
本月均价 9610元/m²
环比上月 上涨 0.22%
同比去年 下跌 21.53%
猜你喜欢
同小区其它房源
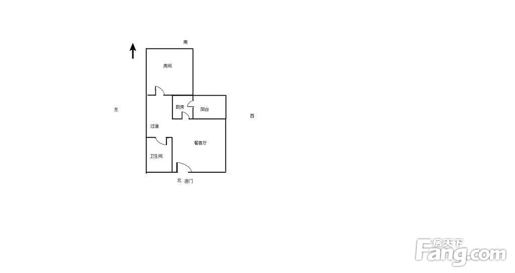
户型齐全,主打明卫,客厅朝南,主卧朝南一居
江北万达公寓户型主要有40平-70平的明卫,客厅朝南,主卧朝南的一居 、70平-70平的户型方正,明卫,双卧朝南的二居 。
*获取完整户型报告,同时会有免费语音讲解服务
-
21819元/㎡
本月挂牌均价
-
0.49%
环比上月
买房加房产交流群,省钱不踩雷
3000+人正在热聊
- 免费咨询
- 专业服务
- 区域解读
- 户型分析





