金沙湖·杭臻源筑·4室·2厅
-
350万
总价
-
4室2厅1卫
户型
-
142.78㎡
建筑面积
买房加房产交流群,省钱不踩雷
3000+人正在热聊
加入群聊
-
单价
24513元/平米
- 挂牌价格解析
-
楼层
中层/26层
- 咨询楼层
-
套内
141.78㎡
- 咨询套内使用面积
-
楼型
板楼
-
朝向
南北
-
装修
精装修
-
年代
2024
-
发布
2025-10-12
-
地铁
距1号线(下沙江滨-湘湖)下沙西站约1米
-
咨询总首付
首付约104万
首付税费及佣金情况 -
深度测评
小区融创金昌启亚·杭臻源筑(钱塘-金沙湖)
-
更多
楼户比、楼层高度、交易历史、抵押信息
-
核验码
250305AW645196
房源描述(1)
周边配套
地址:学林街与松华路交叉口(地铁1号线下沙西站直线距离约400米)
交通综合评分
查看全部5.7
“一般”
超过杭州0.0%的小区
-
地铁公交
9.0
-
驾车出行
7.0
本月均价 35279元/m²
环比上月 下跌 1.32%
同比去年 上涨 8.34%
猜你喜欢
同小区其它房源
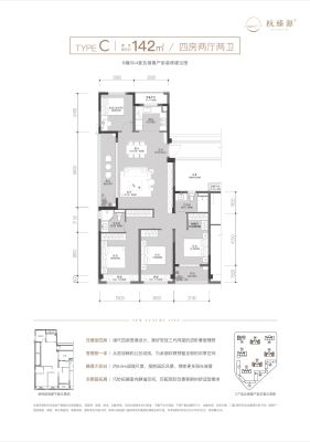
户型齐全,主打南北通透,全明格局四居
融创金昌启亚·杭臻源筑户型主要有128平-142平的南北通透,全明格局的四居 、105平-105平的主卧朝南,挑高客厅的三居 。
*获取完整户型报告,同时会有免费语音讲解服务
-
22679元/㎡
本月挂牌均价
-
0.53%
环比上月
买房加房产交流群,省钱不踩雷
3000+人正在热聊
加入群聊
- 免费咨询
- 专业服务
- 区域解读
- 户型分析
免责声明:房源信息由网站用户提供,其真实性、合法性由信息提供者负责,最终以政府部门登记备案为准。本网站不声明或保证内容之正确性和可靠性,购买该房屋时,请谨慎核查。入学情况仅凭历史经验总结,在此不承诺升学事宜。请您在签订合同之前,切勿支付任何形式的费用,以免上当受骗。

