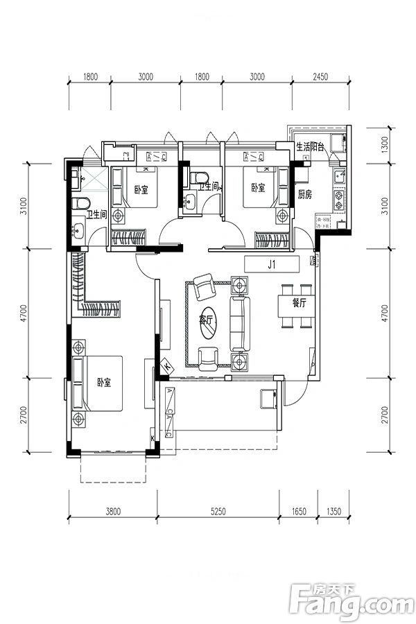
3室2厅2卫1厨
售完洋房J1户型标准层 | 建面:124.57㎡ | 朝向:
- 所属楼栋
17栋18栋20栋21栋24栋
- 所属楼盘
价格待定算月供
实际价格以售楼处为准,户型图为开发商提供,具体以实际交房标准为准
微信打开
查看完整户型评测10
户型评分
户型信息
- 2个阳台
- 3个飘窗
- 1个明卫
- 次卧带卫生间
- 大面宽阳台
- 全明格局
- 主卧套间
房屋细节
客厅 67.8㎡ | 面宽12.3m | 进深7.2m
- 空间豪华客厅宽敞明亮,豪华而不失雅致,是主人彰显品味与身份的重要空间。
优秀落地窗为客厅增添了别样的风情,无论是阅读、品茗还是小憩,都能在此感受到大自然的温馨与陪伴。- 有阳台阳台与客厅融为一体,让室内空间更显宽敞,同时也增添了一份户外的清新感。
卧室A 19.5㎡ | 面宽3.9m | 进深5m
空间可容纳
床
1.8m*2m
床头柜X2
0.4m宽
衣柜
0.6m深
- 空间较大宽敞明亮的卧室A,让您在繁忙的生活中,也能拥有宁静的私人空间。
- 有飘窗卧室A带飘窗设计,让您的居住空间更加通透,同时享受宁静的休闲时光。
卧室B 25.2㎡ | 面宽5m | 进深5m
空间可容纳
床
1.8m*2m
床头柜X2
0.4m宽
衣柜
0.6m深
- 空间较大卧室B面积大,采光充足,为您打造明亮舒适的居住空间。
- 有飘窗飘窗点缀卧室B,为室内增添一份雅致,同时提供舒适的休闲空间,让生活更加惬意。
卧室C 52㎡ | 面宽5.1m | 进深10.2m
空间可容纳
床
1.8m*2m
床头柜X2
0.4m宽
衣柜
0.6m深
- 空间较大卧室C空间开阔,通风良好,让您拥有健康舒适的居住环境。
- 次卧有阳台带有阳台的卧室C,让您的生活更加宁静。您可以在这里静心冥想,感受内心的平静与安宁,享受生活的宁静与祥和。
厨房 20㎡ | 面宽4.5m | 进深5m
- 空间较大厨房面积宽敞,多人协作料理更加高效,同时满足家电摆放需求,让生活更美好。
- 厨房带阳台厨房有小阳台,方便储物。
卫生间A 15.6㎡ | 面宽3.1m | 进深5m
- 空间较大卫生间A空间宽敞,干湿分离设计让卫浴体验更加完美,提升生活品质。
- 明卫有了窗户的卫生间A,通风换气更加高效,有效避免了潮湿和细菌滋生。
卫生间B 9.9㎡ | 面宽3.2m | 进深3.1m
- 空间适中卫生间B虽小,却别具一格,空间利用得当,让日常洗漱变得轻松愉快。
优惠活动
查看更多优惠
- 专家解读
3室2厅1卫售完8“良好”
价格待定88.12㎡ - 专家解读
3室2厅1卫售完8“良好”
价格待定91.64㎡ - 专家解读
3室2厅1卫售完8“良好”
价格待定92.41㎡ - 专家解读
3室2厅2卫售完9“优秀”
价格待定99.23㎡ - 专家解读
3室2厅2卫售完10“极佳”
价格待定100.00㎡ - 专家解读
3室2厅2卫售完10“极佳”
价格待定100.59㎡ - 专家解读
3室2厅2卫售完10“极佳”
价格待定106.40㎡ - 专家解读
3室2厅2卫售完10“极佳”
价格待定111.58㎡ - 专家解读
3室2厅2卫售完10“极佳”
价格待定111.87㎡ - 专家解读
3室2厅2卫售完10“极佳”
价格待定112.73㎡ - 专家解读
3室2厅2卫售完10“极佳”
价格待定113.20㎡ - 专家解读
3室2厅2卫售完10“极佳”
价格待定114.34㎡ - 专家解读
3室2厅2卫售完10“极佳”
价格待定115.93㎡ - 专家解读
3室2厅2卫售完10“极佳”
价格待定116.73㎡ - 专家解读
3室2厅2卫售完10“极佳”
价格待定117.38㎡ - 专家解读
3室2厅2卫售完10“极佳”
价格待定117.81㎡ - 专家解读
3室2厅2卫售完10“极佳”
价格待定117.81㎡ - 专家解读
3室2厅2卫售完10“极佳”
价格待定120.27㎡ - 专家解读
3室2厅2卫售完10“极佳”
价格待定120.86㎡ - 专家解读
3室2厅2卫售完10“极佳”
价格待定121.80㎡ - 专家解读
3室2厅2卫售完10“极佳”
价格待定122.07㎡ - 专家解读
3室2厅2卫售完10“极佳”
价格待定122.11㎡ - 专家解读
3室2厅2卫售完10“极佳”
价格待定122.17㎡ - 专家解读
3室2厅2卫售完10“极佳”
价格待定122.46㎡ - 专家解读
3室2厅2卫售完10“极佳”
价格待定122.73㎡ - 专家解读
3室2厅2卫售完10“极佳”
价格待定125.65㎡ - 专家解读
3室2厅2卫售完9“优秀”
价格待定138.58㎡ - 专家解读
3室2厅2卫售完10“极佳”
价格待定126.31㎡
3室3厅3卫售完7“普通”
价格待定138.87㎡
3室3厅3卫售完7“普通”
价格待定139.17㎡
3室3厅3卫售完7“普通”
价格待定142.66㎡
3室2厅2卫售完10“极佳”
价格待定190.23㎡
3室2厅2卫售完10“极佳”
价格待定190.34㎡
置业顾问(6)
- 免费咨询
- 专业服务
- 区域解读
- 户型分析
查看全部
对此楼盘感兴趣的人还浏览了
三江春天
7200元/平方米
崇州用户评分8.29分
在售改善优选洋房
天悦世家
7800元/平方米
崇州用户评分8.72分
在售小户型景观居所公园地产
中国青城国际颐养中心
13000元/平方米
崇州用户评分8.16分
在售低密居所洋房
查看全部



优秀












































