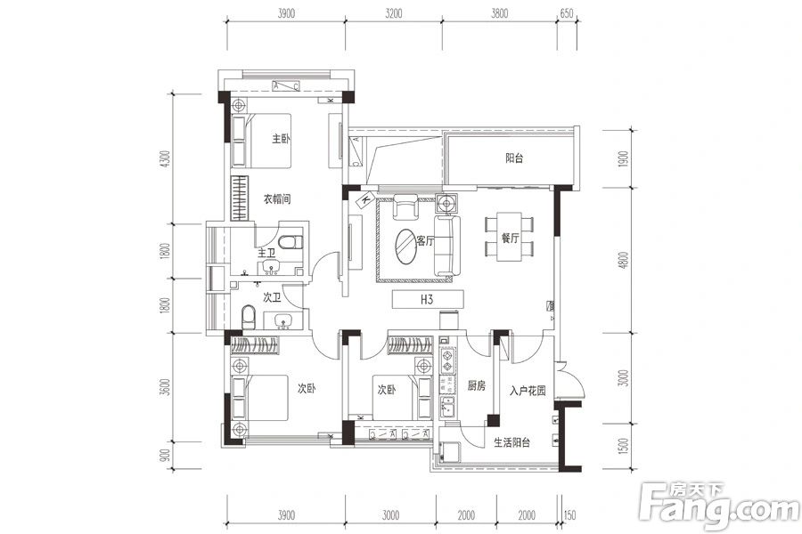
3室2厅2卫1厨
售完洋房三至五层H3户型 | 建面:125.65㎡ | 朝向:
- 所属楼栋
27栋
- 所属楼盘
价格待定算月供
实际价格以售楼处为准,户型图为开发商提供,具体以实际交房标准为准
微信打开
查看完整户型评测10
户型评分
户型信息
- 2个阳台
- 4个飘窗
- 2个明卫
- 独立衣帽间
- 大面宽阳台
- 主卧带卫
- 双阳台
房屋细节
客厅 43㎡ | 面宽9.1m | 进深6.3m
- 空间豪华宽敞豪华的客厅,是家庭聚会的绝佳场所,也是主人展现品味的重要舞台。
优秀透过客厅的落地窗,您可以尽情欣赏室外的美景,感受大自然的呼吸,让心灵得到放松与净化。
卧室A 22.3㎡ | 面宽4.5m | 进深7.3m
空间可容纳
床
1.8m*2m
床头柜X2
0.4m宽
衣柜
0.6m深
- 空间较大卧室A面积大,采光充足,为您打造明亮舒适的居住空间。
- 有飘窗卧室A的飘窗设计,让自然与室内空间完美融合,为您带来一份轻松愉悦的居住体验。
卧室B 16.2㎡ | 面宽4.5m | 进深3.6m
空间可容纳
床
1.8m*2m
床头柜X2
0.4m宽
衣柜
0.6m深
- 空间适中卧室B虽小,却精致无比,设计匠心独运,巧妙布局,让每一寸空间都发挥到极致,营造出温馨舒适的休憩氛围。
优秀朝南设计的卧室B,光线明亮且宜人,通风效果出色,为您的私人领地营造一份自然的惬意与安逸,无论是短暂休息还是长夜安睡,都能感受到阳光的温暖陪伴。
优秀透过卧室B的落地窗,您可以尽情欣赏窗外的美景,感受大自然的清新与宁静。
卧室C 13.5㎡ | 面宽3.8m | 进深3.6m
空间可容纳
床
1.8m*2m
床头柜X2
0.4m宽
衣柜
0.6m深
- 空间适中精致小巧的卧室C,虽然面积不大,但设计却充满巧思,每一处都透露着舒适与温馨,让您感受到家的温暖。
优秀朝南的卧室C采光优良,通风顺畅,为您的私人领地营造一份自然的宁静与温馨,无论是短暂休息还是深度睡眠,都能沐浴在温暖的阳光之中。- 有飘窗飘窗点缀卧室C,为室内增添一份雅致与灵动,让您的居住更加舒适与惬意。
厨房 6.8㎡ | 面宽1.9m | 进深3.6m
- 空间较大宽敞的厨房空间,满足多人协作料理的需求,同时容纳冰箱等家电,生活更便利。
- 厨房带阳台厨房有个小阳台,给杂物一个收纳空间。
卫生间A 6.4㎡ | 面宽3.2m | 进深2m
- 空间适中精致设计的卫生间A,空间利用恰到好处,让您的洗浴体验更加舒适愉悦。
卫生间B 6.4㎡ | 面宽3.2m | 进深2m
- 空间适中卫生间B空间适中,既不过于紧凑也不过于空旷,让您的洗浴体验更加舒适自然。
优惠活动
查看更多优惠
- 专家解读
3室2厅1卫售完8“良好”
价格待定88.12㎡ - 专家解读
3室2厅1卫售完8“良好”
价格待定91.64㎡ - 专家解读
3室2厅1卫售完8“良好”
价格待定92.41㎡ - 专家解读
3室2厅2卫售完9“优秀”
价格待定99.23㎡ - 专家解读
3室2厅2卫售完10“极佳”
价格待定100.00㎡ - 专家解读
3室2厅2卫售完10“极佳”
价格待定100.59㎡ - 专家解读
3室2厅2卫售完10“极佳”
价格待定106.40㎡ - 专家解读
3室2厅2卫售完10“极佳”
价格待定111.58㎡ - 专家解读
3室2厅2卫售完10“极佳”
价格待定111.87㎡ - 专家解读
3室2厅2卫售完10“极佳”
价格待定112.73㎡ - 专家解读
3室2厅2卫售完10“极佳”
价格待定113.20㎡ - 专家解读
3室2厅2卫售完10“极佳”
价格待定114.34㎡ - 专家解读
3室2厅2卫售完10“极佳”
价格待定115.93㎡ - 专家解读
3室2厅2卫售完10“极佳”
价格待定116.73㎡ - 专家解读
3室2厅2卫售完10“极佳”
价格待定117.38㎡ - 专家解读
3室2厅2卫售完10“极佳”
价格待定117.81㎡ - 专家解读
3室2厅2卫售完10“极佳”
价格待定117.81㎡ - 专家解读
3室2厅2卫售完10“极佳”
价格待定120.27㎡ - 专家解读
3室2厅2卫售完10“极佳”
价格待定120.86㎡ - 专家解读
3室2厅2卫售完10“极佳”
价格待定121.80㎡ - 专家解读
3室2厅2卫售完10“极佳”
价格待定122.07㎡ - 专家解读
3室2厅2卫售完10“极佳”
价格待定122.11㎡ - 专家解读
3室2厅2卫售完10“极佳”
价格待定122.17㎡ - 专家解读
3室2厅2卫售完10“极佳”
价格待定122.46㎡ - 专家解读
3室2厅2卫售完10“极佳”
价格待定122.73㎡ - 专家解读
3室2厅2卫售完10“极佳”
价格待定124.57㎡ - 专家解读
3室2厅2卫售完9“优秀”
价格待定138.58㎡ - 专家解读
3室2厅2卫售完10“极佳”
价格待定126.31㎡
3室3厅3卫售完7“普通”
价格待定138.87㎡
3室3厅3卫售完7“普通”
价格待定139.17㎡
3室3厅3卫售完7“普通”
价格待定142.66㎡
3室2厅2卫售完10“极佳”
价格待定190.23㎡
3室2厅2卫售完10“极佳”
价格待定190.34㎡
置业顾问(6)
- 免费咨询
- 专业服务
- 区域解读
- 户型分析
查看全部
对此楼盘感兴趣的人还浏览了
三江春天
7200元/平方米
崇州用户评分8.29分
在售改善优选洋房
天悦世家
7800元/平方米
崇州用户评分8.72分
在售小户型景观居所公园地产
中国青城国际颐养中心
13000元/平方米
崇州用户评分8.16分
在售低密居所洋房
查看全部



优秀












































