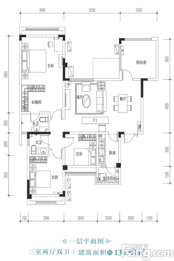
3室2厅2卫1厨
售完洋房F1户型一层 | 建面:138.58㎡ | 朝向:
- 所属楼栋
27栋
- 所属楼盘
价格待定算月供
实际价格以售楼处为准,户型图为开发商提供,具体以实际交房标准为准
微信打开
查看完整户型评测9
户型评分
户型信息
- 1个阳台
- 3个飘窗
- 2个明卫
- 明厨
- 独立衣帽间
- 全明格局
- 主卧带卫
房屋细节
阳光房 6.5㎡ | 面宽2.7m | 进深2.5m
优秀站在阳光房的落地窗前,您可以尽情欣赏窗外的美景,感受生活的宁静与美好。
客厅 17.1㎡ | 面宽6.4m | 进深4.2m
- 紧凑实用这个客厅虽然面积有限,但却展现了小巧而精致的风采。紧凑实用的设计让空间得以充分利用。这个小空间充满了家的温馨与舒适,让人感到宜居。
优秀客厅的落地窗设计巧妙地将室内与室外融为一体,让您在享受现代家居生活的同时,也能感受到大自然的拥抱。
卧室A 10.7㎡ | 面宽3.1m | 进深4.7m
空间可容纳
床
1.8m*2m
床头柜X2
0.4m宽
衣柜
0.6m深
- 空间较大宽敞的卧室A,让您的居住体验更加舒适、自在。
- 有飘窗飘窗在卧室A中发挥着重要作用,既拓宽视野,又为您带来一份宁静与安逸。
卧室B 9.8㎡ | 面宽2.5m | 进深4.4m
空间可容纳
床
1.2m*2m
床头柜X1
0.4m宽
- 空间适中卧室B设计得十分用心,每一寸空间都得到了充分的利用,既精致又实用,为您带来舒适的休憩体验。
优秀朝南设计的卧室B,光线明亮而宜人,通风流畅,为您的私人空间带来一份自然的惬意与宁静,无论是短暂休息还是深度睡眠,都能享受到阳光的温暖照耀。- 有飘窗卧室B的飘窗设计,让自然光线与室内空间完美融合,为您带来一份轻松愉悦的生活体验。
卧室C 5.6㎡ | 面宽2.3m | 进深2.4m
- 空间适中尽管卧室C面积有限,但设计师巧妙地利用每一寸空间,布局合理,使这个小小的角落成为您放松身心的温馨之地。
优秀卧室C朝南,光线充裕,空气流通,为您的私密领地增添一抹自然的温馨,无论是午后休憩还是夜晚入梦,都能感受到阳光的温馨陪伴。- 有飘窗飘窗点缀卧室C,为室内增添一份雅致,同时提供舒适的休闲空间,让生活更加惬意。
厨房 4.4㎡ | 面宽1.8m | 进深2.4m
- 空间适中厨房空间宽敞明亮,既满足您的烹饪需求,又能让厨房成为家中的一道亮丽风景。
- 厨房带阳台厨房有个小阳台,给杂物一个收纳空间。
卫生间A 4.2㎡ | 面宽2.3m | 进深1.9m
- 空间适中卫生间A空间适中,既满足您的日常需求,又保持空间的舒适度,让您的洗浴体验更加完美。
- 明卫有了窗户的卫生间A,通风换气更为便捷,有效避免潮湿和异味,保持室内干爽清新。
卫生间B 3.1㎡ | 面宽1.6m | 进深1.9m
- 空间适中虽面积不大,但卫生间B布局合理,空间适中,轻松享受私密舒适的洗漱时光。
- 明卫窗户的加入让卫生间B的通风效果更佳,同时也为居住者带来了更加舒适的卫浴体验。
优惠活动
查看更多优惠
- 专家解读
3室2厅1卫售完8“良好”
价格待定88.12㎡ - 专家解读
3室2厅1卫售完8“良好”
价格待定91.64㎡ - 专家解读
3室2厅1卫售完8“良好”
价格待定92.41㎡ - 专家解读
3室2厅2卫售完9“优秀”
价格待定99.23㎡ - 专家解读
3室2厅2卫售完10“极佳”
价格待定100.00㎡ - 专家解读
3室2厅2卫售完10“极佳”
价格待定100.59㎡ - 专家解读
3室2厅2卫售完10“极佳”
价格待定106.40㎡ - 专家解读
3室2厅2卫售完10“极佳”
价格待定111.58㎡ - 专家解读
3室2厅2卫售完10“极佳”
价格待定111.87㎡ - 专家解读
3室2厅2卫售完10“极佳”
价格待定112.73㎡ - 专家解读
3室2厅2卫售完10“极佳”
价格待定113.20㎡ - 专家解读
3室2厅2卫售完10“极佳”
价格待定114.34㎡ - 专家解读
3室2厅2卫售完10“极佳”
价格待定115.93㎡ - 专家解读
3室2厅2卫售完10“极佳”
价格待定116.73㎡ - 专家解读
3室2厅2卫售完10“极佳”
价格待定117.38㎡ - 专家解读
3室2厅2卫售完10“极佳”
价格待定117.81㎡ - 专家解读
3室2厅2卫售完10“极佳”
价格待定117.81㎡ - 专家解读
3室2厅2卫售完10“极佳”
价格待定120.27㎡ - 专家解读
3室2厅2卫售完10“极佳”
价格待定120.86㎡ - 专家解读
3室2厅2卫售完10“极佳”
价格待定121.80㎡ - 专家解读
3室2厅2卫售完10“极佳”
价格待定122.07㎡ - 专家解读
3室2厅2卫售完10“极佳”
价格待定122.11㎡ - 专家解读
3室2厅2卫售完10“极佳”
价格待定122.17㎡ - 专家解读
3室2厅2卫售完10“极佳”
价格待定122.46㎡ - 专家解读
3室2厅2卫售完10“极佳”
价格待定122.73㎡ - 专家解读
3室2厅2卫售完10“极佳”
价格待定124.57㎡ - 专家解读
3室2厅2卫售完10“极佳”
价格待定125.65㎡ - 专家解读
3室2厅2卫售完10“极佳”
价格待定126.31㎡
3室3厅3卫售完7“普通”
价格待定138.87㎡
3室3厅3卫售完7“普通”
价格待定139.17㎡
3室3厅3卫售完7“普通”
价格待定142.66㎡
3室2厅2卫售完10“极佳”
价格待定190.23㎡
3室2厅2卫售完10“极佳”
价格待定190.34㎡
置业顾问(6)
- 免费咨询
- 专业服务
- 区域解读
- 户型分析
查看全部
对此楼盘感兴趣的人还浏览了
三江春天
7200元/平方米
崇州用户评分8.29分
在售改善优选洋房
天悦世家
7800元/平方米
崇州用户评分8.72分
在售小户型景观居所公园地产
中国青城国际颐养中心
13000元/平方米
崇州用户评分8.16分
在售低密居所洋房
查看全部



优秀












































