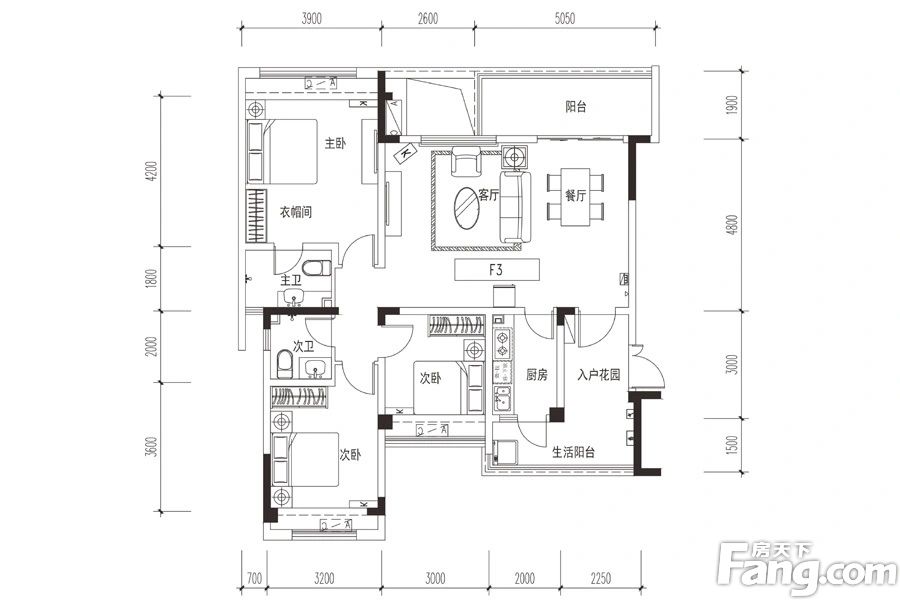
3室2厅2卫1厨
售完洋房F3户型三至五层 | 建面:122.11㎡ | 朝向:
- 所属楼盘
价格待定算月供
实际价格以售楼处为准,户型图为开发商提供,具体以实际交房标准为准
微信打开
查看完整户型评测10
户型评分
户型信息
- 2个阳台
- 2个明卫
- 独立衣帽间
- 大面宽阳台
- 主卧带卫
- 双阳台
房屋细节
客厅 33.2㎡ | 面宽8.6m | 进深6.1m
- 空间豪华客厅设计豪华而不失实用,空间布局合理,让人感受到尊贵与舒适的完美结合。
优秀客厅的落地窗设计简约而不失优雅,让室内空间更加通透,为您打造一个与自然和谐共处的居住环境。- 有阳台阳台与客厅相连,使得室内空间与室外环境得以完美融合,居住体验更加舒适。
卧室A 15.1㎡ | 面宽3.9m | 进深4.8m
空间可容纳
床
1.8m*2m
床头柜X2
0.4m宽
衣柜
0.6m深
- 空间较大宽敞明亮的卧室A,给您带来舒适的居住体验,尽享家的温馨。
优秀卧室A设有落地窗,每日清晨阳光洒满房间,美景一览无余,为您开启一天的惬意时光。
卧室B 12.8㎡ | 面宽3.3m | 进深4.5m
空间可容纳
床
1.8m*2m
床头柜X2
0.4m宽
衣柜
0.6m深
- 空间较大宽敞明亮的卧室B,给您带来舒适的居住体验,尽享家的温馨。
优秀朝南的卧室B采光优良,通风顺畅,为您的私人领地营造一份自然的宁静与温馨,无论是短暂休息还是深度睡眠,都能沐浴在温暖的阳光之中。
优秀卧室B的落地窗,让室内与室外融为一体,美景尽收眼底,为您带来宁静与放松的居住体验。
卧室C 12.1㎡ | 面宽3.4m | 进深3.6m
空间可容纳
床
1.8m*2m
床头柜X2
0.4m宽
衣柜
0.6m深
- 空间适中精致小巧的卧室C,虽然面积不大,但设计却充满巧思,每一处都透露着舒适与温馨,让您感受到家的温暖。
优秀朝南的卧室C,阳光倾洒,通风顺畅,为您打造一处自然舒适的私密空间,无论是短暂休憩还是夜晚入眠,都能享受阳光的温柔照耀。
优秀卧室C宽敞明亮,落地窗让光线自由穿透,让您在舒适的床上尽情享受宁静和美好的一天开始。
厨房 6.8㎡ | 面宽1.9m | 进深3.6m
- 空间较大厨房面积宽敞,多人协作料理更加高效,同时满足家电摆放需求,让生活更美好。
- 明厨厨房的窗户带来明媚光线,让烹饪环境更加舒适,每一道菜肴都仿佛沐浴在阳光之中,增添家的温馨。
- 厨房带阳台厨房有小阳台,方便储物。
卫生间A 5.2㎡ | 面宽2.6m | 进深2m
- 空间适中卫生间A虽小,却别具一格,空间利用得当,让日常洗漱变得轻松愉快。
- 明卫卫生间A设有窗户,通风效果更佳,有效减少潮湿,打造健康舒适的卫浴环境。
卫生间B 4㎡ | 面宽2m | 进深2.1m
- 空间适中卫生间B设计精巧,空间利用恰到好处,虽小却五脏俱全,满足日常所需。
- 明卫卫生间B的窗户让自然光与新鲜空气得以自由流通,为居住者打造了一个健康舒适的卫浴空间。
优惠活动
查看更多优惠
- 专家解读
3室2厅1卫售完8“良好”
价格待定88.12㎡ - 专家解读
3室2厅1卫售完8“良好”
价格待定91.64㎡ - 专家解读
3室2厅1卫售完8“良好”
价格待定92.41㎡ - 专家解读
3室2厅2卫售完9“优秀”
价格待定99.23㎡ - 专家解读
3室2厅2卫售完10“极佳”
价格待定100.00㎡ - 专家解读
3室2厅2卫售完10“极佳”
价格待定100.59㎡ - 专家解读
3室2厅2卫售完10“极佳”
价格待定106.40㎡ - 专家解读
3室2厅2卫售完10“极佳”
价格待定111.58㎡ - 专家解读
3室2厅2卫售完10“极佳”
价格待定111.87㎡ - 专家解读
3室2厅2卫售完10“极佳”
价格待定112.73㎡ - 专家解读
3室2厅2卫售完10“极佳”
价格待定113.20㎡ - 专家解读
3室2厅2卫售完10“极佳”
价格待定114.34㎡ - 专家解读
3室2厅2卫售完10“极佳”
价格待定115.93㎡ - 专家解读
3室2厅2卫售完10“极佳”
价格待定116.73㎡ - 专家解读
3室2厅2卫售完10“极佳”
价格待定117.38㎡ - 专家解读
3室2厅2卫售完10“极佳”
价格待定117.81㎡ - 专家解读
3室2厅2卫售完10“极佳”
价格待定117.81㎡ - 专家解读
3室2厅2卫售完10“极佳”
价格待定120.27㎡ - 专家解读
3室2厅2卫售完10“极佳”
价格待定120.86㎡ - 专家解读
3室2厅2卫售完10“极佳”
价格待定121.80㎡ - 专家解读
3室2厅2卫售完10“极佳”
价格待定122.07㎡ - 专家解读
3室2厅2卫售完10“极佳”
价格待定122.17㎡ - 专家解读
3室2厅2卫售完10“极佳”
价格待定122.46㎡ - 专家解读
3室2厅2卫售完10“极佳”
价格待定122.73㎡ - 专家解读
3室2厅2卫售完10“极佳”
价格待定124.57㎡ - 专家解读
3室2厅2卫售完10“极佳”
价格待定125.65㎡ - 专家解读
3室2厅2卫售完9“优秀”
价格待定138.58㎡ - 专家解读
3室2厅2卫售完10“极佳”
价格待定126.31㎡
3室3厅3卫售完7“普通”
价格待定138.87㎡
3室3厅3卫售完7“普通”
价格待定139.17㎡
3室3厅3卫售完7“普通”
价格待定142.66㎡
3室2厅2卫售完10“极佳”
价格待定190.23㎡
3室2厅2卫售完10“极佳”
价格待定190.34㎡
置业顾问(6)
- 免费咨询
- 专业服务
- 区域解读
- 户型分析
查看全部
对此楼盘感兴趣的人还浏览了
三江春天
7200元/平方米
崇州用户评分8.29分
在售改善优选洋房
天悦世家
7800元/平方米
崇州用户评分8.72分
在售小户型景观居所公园地产
中国青城国际颐养中心
13000元/平方米
崇州用户评分8.16分
在售低密居所洋房
查看全部



优秀












































