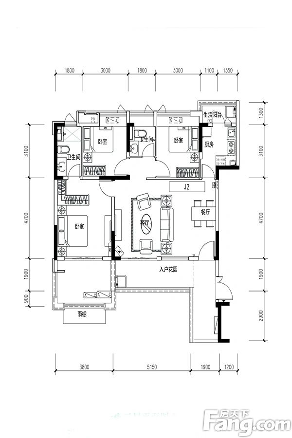
3室2厅2卫1厨
售完洋房J2户型标准层 | 建面:116.73㎡ | 朝向:
- 所属楼栋
17栋18栋20栋21栋24栋
- 所属楼盘
价格待定算月供
实际价格以售楼处为准,户型图为开发商提供,具体以实际交房标准为准
微信打开
查看完整户型评测10
户型评分
户型信息
- 2个阳台
- 3个飘窗
- 2个明卫
- 次卧带卫生间
- 全明格局
- 主卧带卫
房屋细节
客厅 24.6㎡ | 面宽5.2m | 进深6.7m
- 空间豪华豪华客厅设计典雅大气,空间感与舒适感并重,让人在其中感受到家的尊贵与温馨。
卧室A 6.1㎡ | 面宽2.2m | 进深2.8m
- 空间适中卧室A虽小,却设计得精致而实用,每一寸空间都得到了合理的利用,为您打造出一个温馨舒适的休憩空间。
- 有飘窗卧室A的飘窗设计独具匠心,既拓宽视野,又为您打造一个私密的放松空间。
卧室B 5.7㎡ | 面宽2.1m | 进深2.8m
- 空间适中卧室B虽小,却设计得十分用心,每一寸空间都被充分利用,为您打造出一个既舒适又温馨的休憩角落。
- 有飘窗飘窗成为卧室B的一大亮点,不仅提升室内采光,还为您打造一个宁静的休憩场所。
卧室C 19㎡ | 面宽3.3m | 进深5.8m
空间可容纳
床
1.8m*2m
床头柜X2
0.4m宽
衣柜
0.6m深
- 空间较大宽敞舒适的卧室C,是您放松身心、享受生活的理想之地。
- 次卧有阳台卧室C的阳台,是您放松身心的好去处。您可以在这里摆放绿植,感受自然的气息,让身心得到彻底的放松与舒缓。
厨房 5.2㎡ | 面宽2.1m | 进深2.8m
- 空间适中精心规划的厨房面积,既实用又美观,为您的烹饪生活增添一份惬意。
- 厨房带阳台厨房有小阳台,方便储物。
卫生间A 4.7㎡ | 面宽1.7m | 进深2.8m
- 空间适中卫生间A空间恰到好处,既实用又美观,为您打造温馨的洗浴空间。
- 明卫有了窗户的卫生间A,不仅通风好,还能让居住者感受到自然的美好,让卫浴时光更加惬意。
卫生间B 2.7㎡ | 面宽1.4m | 进深1.9m
- 空间适中精致小巧的卫生间B,空间布局合理,既实用又美观,营造温馨舒适的洗浴环境。
优惠活动
查看更多优惠
- 专家解读
3室2厅1卫售完8“良好”
价格待定88.12㎡ - 专家解读
3室2厅1卫售完8“良好”
价格待定91.64㎡ - 专家解读
3室2厅1卫售完8“良好”
价格待定92.41㎡ - 专家解读
3室2厅2卫售完9“优秀”
价格待定99.23㎡ - 专家解读
3室2厅2卫售完10“极佳”
价格待定100.00㎡ - 专家解读
3室2厅2卫售完10“极佳”
价格待定100.59㎡ - 专家解读
3室2厅2卫售完10“极佳”
价格待定106.40㎡ - 专家解读
3室2厅2卫售完10“极佳”
价格待定111.58㎡ - 专家解读
3室2厅2卫售完10“极佳”
价格待定111.87㎡ - 专家解读
3室2厅2卫售完10“极佳”
价格待定112.73㎡ - 专家解读
3室2厅2卫售完10“极佳”
价格待定113.20㎡ - 专家解读
3室2厅2卫售完10“极佳”
价格待定114.34㎡ - 专家解读
3室2厅2卫售完10“极佳”
价格待定115.93㎡ - 专家解读
3室2厅2卫售完10“极佳”
价格待定117.38㎡ - 专家解读
3室2厅2卫售完10“极佳”
价格待定117.81㎡ - 专家解读
3室2厅2卫售完10“极佳”
价格待定117.81㎡ - 专家解读
3室2厅2卫售完10“极佳”
价格待定120.27㎡ - 专家解读
3室2厅2卫售完10“极佳”
价格待定120.86㎡ - 专家解读
3室2厅2卫售完10“极佳”
价格待定121.80㎡ - 专家解读
3室2厅2卫售完10“极佳”
价格待定122.07㎡ - 专家解读
3室2厅2卫售完10“极佳”
价格待定122.11㎡ - 专家解读
3室2厅2卫售完10“极佳”
价格待定122.17㎡ - 专家解读
3室2厅2卫售完10“极佳”
价格待定122.46㎡ - 专家解读
3室2厅2卫售完10“极佳”
价格待定122.73㎡ - 专家解读
3室2厅2卫售完10“极佳”
价格待定124.57㎡ - 专家解读
3室2厅2卫售完10“极佳”
价格待定125.65㎡ - 专家解读
3室2厅2卫售完9“优秀”
价格待定138.58㎡ - 专家解读
3室2厅2卫售完10“极佳”
价格待定126.31㎡
3室3厅3卫售完7“普通”
价格待定138.87㎡
3室3厅3卫售完7“普通”
价格待定139.17㎡
3室3厅3卫售完7“普通”
价格待定142.66㎡
3室2厅2卫售完10“极佳”
价格待定190.23㎡
3室2厅2卫售完10“极佳”
价格待定190.34㎡
置业顾问(6)
- 免费咨询
- 专业服务
- 区域解读
- 户型分析
查看全部
对此楼盘感兴趣的人还浏览了
三江春天
7200元/平方米
崇州用户评分8.29分
在售改善优选洋房
天悦世家
7800元/平方米
崇州用户评分8.72分
在售小户型景观居所公园地产
中国青城国际颐养中心
13000元/平方米
崇州用户评分8.16分
在售低密居所洋房
查看全部
















































