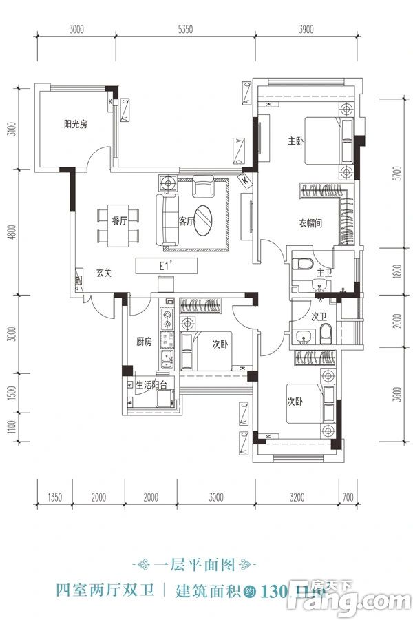
4室2厅2卫1厨
售完洋房E'1户型一层 | 建面:130.11㎡ | 朝向:
- 所属楼盘
价格待定算月供
实际价格以售楼处为准,户型图为开发商提供,具体以实际交房标准为准
微信打开
查看完整户型评测10
户型评分
户型信息
- 1个阳台
- 3个飘窗
- 2个明卫
- 明厨
- 独立衣帽间
- 主卧带卫
- 厨卫不对门
房屋细节
阳光房 3.3㎡ | 面宽1.9m | 进深1.8m
- 朝东朝东的阳光房迎接清晨的第一缕阳光,为您开启全新的一天,带来无尽的活力与希望,让您在早晨充满能量。
优秀阳光房的落地窗,让室内空间更加开阔,为您带来一种心旷神怡的居住感受。
客厅 14.3㎡ | 面宽6m | 进深4.1m
- 紧凑实用这个客厅虽然面积有限,但却展现了小巧而精致的风采。紧凑实用的设计让空间得以充分利用。这个小空间充满了家的温馨与舒适,让人感到宜居。
优秀透过客厅的落地窗,您可以与大自然亲密接触,感受阳光的温暖和微风的轻拂,让心灵得到宁静与放松。
卧室A 9.5㎡ | 面宽3.3m | 进深2.9m
空间可容纳
床
1.2m*2m
床头柜X1
0.4m宽
- 空间适中精致小巧的卧室A,虽然面积不大,但设计却十分用心,每一处都透露着舒适与温馨,让您拥有一个温馨的休憩之所。
优秀朝南的卧室A采光优良,通风效果出色,为您的私人领地带来一份自然的惬意与舒适,无论是午后小憩还是夜晚安睡,都能沐浴在温暖的阳光中。- 有飘窗卧室A带飘窗设计,让您的视野更加开阔,同时享受一份宁静与舒适的生活体验。
卧室B 8.8㎡ | 面宽3.9m | 进深2.3m
空间可容纳
床
1.2m*2m
床头柜X1
0.4m宽
- 空间适中卧室B设计得十分用心,每一寸空间都得到了充分的利用,既精致又实用,为您带来舒适的休憩体验。
- 有飘窗飘窗成为卧室B的亮点之一,既提升室内采光,又为您带来一份愉悦的视觉享受。
卧室C 10.6㎡ | 面宽3.3m | 进深3.4m
空间可容纳
床
1.8m*2m
床头柜X2
0.4m宽
衣柜
0.6m深
- 空间适中尽管卧室C面积有限,但设计师巧妙地利用每一寸空间,布局合理,使这个小小的角落成为您放松身心的温馨之地。
优秀卧室C朝南,光线柔和而通透,通风顺畅,为您的私密空间增添一份自然的舒适与宁静,无论是午后小憩还是夜晚安睡,都能享受到阳光的温馨照耀。- 有飘窗卧室C的飘窗设计独特,不仅提升室内采光效果,还为您带来一份优雅的居住氛围。
厨房 4.3㎡ | 面宽1.5m | 进深2.9m
- 空间适中适中的厨房面积,既满足日常烹饪需求,又能让厨房保持整洁有序。
- 厨房带阳台厨房有小阳台,方便储物。
卫生间A 3.8㎡ | 面宽2.7m | 进深1.4m
- 空间适中卫生间A虽小,但空间布局合理,实用性强,为您打造便捷的洗漱空间。
- 明卫窗户的加入让卫生间A的通风效果更佳,同时也为居住者带来了更加舒适的卫浴体验。
卫生间B 3.7㎡ | 面宽2.7m | 进深1.4m
- 空间适中卫生间B设计精致,空间利用得当,让您在有限的空间内享受舒适的洗浴环境。
- 明卫透过卫生间B的窗户,可以看到外面的风景,让卫浴时光变得更加惬意。
优惠活动
查看更多优惠
- 专家解读
3室2厅1卫售完8“良好”
价格待定88.12㎡ - 专家解读
3室2厅1卫售完8“良好”
价格待定91.64㎡ - 专家解读
3室2厅1卫售完8“良好”
价格待定92.41㎡ - 专家解读
3室2厅2卫售完9“优秀”
价格待定99.23㎡ - 专家解读
3室2厅2卫售完10“极佳”
价格待定100.00㎡ - 专家解读
3室2厅2卫售完10“极佳”
价格待定100.59㎡ - 专家解读
3室2厅2卫售完10“极佳”
价格待定106.40㎡ - 专家解读
3室2厅2卫售完10“极佳”
价格待定111.58㎡ - 专家解读
3室2厅2卫售完10“极佳”
价格待定111.87㎡ - 专家解读
3室2厅2卫售完10“极佳”
价格待定112.73㎡ - 专家解读
3室2厅2卫售完10“极佳”
价格待定113.20㎡ - 专家解读
3室2厅2卫售完10“极佳”
价格待定114.34㎡ - 专家解读
3室2厅2卫售完10“极佳”
价格待定115.93㎡ - 专家解读
3室2厅2卫售完10“极佳”
价格待定116.73㎡ - 专家解读
3室2厅2卫售完10“极佳”
价格待定117.38㎡ - 专家解读
3室2厅2卫售完10“极佳”
价格待定117.81㎡ - 专家解读
3室2厅2卫售完10“极佳”
价格待定117.81㎡ - 专家解读
3室2厅2卫售完10“极佳”
价格待定120.27㎡ - 专家解读
3室2厅2卫售完10“极佳”
价格待定120.86㎡ - 专家解读
3室2厅2卫售完10“极佳”
价格待定121.80㎡ - 专家解读
3室2厅2卫售完10“极佳”
价格待定122.07㎡ - 专家解读
3室2厅2卫售完10“极佳”
价格待定122.11㎡ - 专家解读
3室2厅2卫售完10“极佳”
价格待定122.17㎡ - 专家解读
3室2厅2卫售完10“极佳”
价格待定122.46㎡ - 专家解读
3室2厅2卫售完10“极佳”
价格待定122.73㎡ - 专家解读
3室2厅2卫售完10“极佳”
价格待定124.57㎡ - 专家解读
3室2厅2卫售完10“极佳”
价格待定125.65㎡ - 专家解读
3室2厅2卫售完9“优秀”
价格待定138.58㎡ - 专家解读
3室2厅2卫售完10“极佳”
价格待定126.31㎡
3室3厅3卫售完7“普通”
价格待定138.87㎡
3室3厅3卫售完7“普通”
价格待定139.17㎡
3室3厅3卫售完7“普通”
价格待定142.66㎡
3室2厅2卫售完10“极佳”
价格待定190.23㎡
3室2厅2卫售完10“极佳”
价格待定190.34㎡
置业顾问(6)
- 免费咨询
- 专业服务
- 区域解读
- 户型分析
查看全部
对此楼盘感兴趣的人还浏览了
三江春天
7200元/平方米
崇州用户评分8.29分
在售改善优选洋房
天悦世家
7800元/平方米
崇州用户评分8.72分
在售小户型景观居所公园地产
中国青城国际颐养中心
13000元/平方米
崇州用户评分8.16分
在售低密居所洋房
查看全部



优秀












































