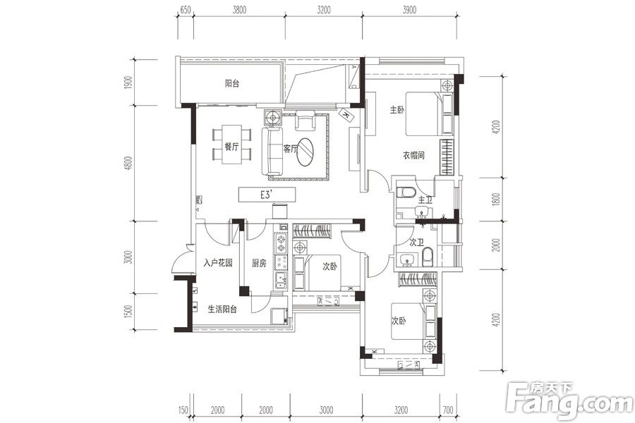
3室2厅2卫1厨
售完洋房E'3户型三至五层 | 建面:121.8㎡ | 朝向:
- 所属楼栋
27栋
- 所属楼盘
价格待定算月供
实际价格以售楼处为准,户型图为开发商提供,具体以实际交房标准为准
微信打开
查看完整户型评测10
户型评分
户型信息
- 2个阳台
- 3个飘窗
- 1个明卫
- 独立衣帽间
- 主卧带卫
- 双阳台
房屋细节
客厅 28.9㎡ | 面宽7.9m | 进深5.7m
- 空间豪华客厅宽敞明亮,豪华而不失简约,让人在享受舒适生活的同时,也能感受到品味的提升。
优秀落地窗让客厅与大自然无缝对接,让您在欣赏美景的同时,也能感受到大自然的恩赐与庇护。
卧室A 16.2㎡ | 面宽4.7m | 进深4.5m
空间可容纳
床
1.8m*2m
床头柜X2
0.4m宽
衣柜
0.6m深
- 空间较大宽敞舒适的卧室A,是您享受品质生活的理想选择。
- 有飘窗拥有飘窗的卧室A,让窗外的风景成为室内的一部分,为您带来一份宁静与惬意。
卧室B 15㎡ | 面宽3.3m | 进深4.8m
空间可容纳
床
1.8m*2m
床头柜X2
0.4m宽
衣柜
0.6m深
- 空间较大卧室B空间开阔,无论是休息还是储物,都能满足您的需求。
优秀卧室B朝南,光线充足且宜人,通风条件良好,为您的私密空间打造一处自然舒适的休憩之所,无论是午后放松还是夜晚入眠,都能感受到阳光的温暖守护。- 有飘窗卧室B的飘窗设计,让自然光线与室内空间完美融合,为您带来一份轻松愉悦的生活体验。
卧室C 7.2㎡ | 面宽2.7m | 进深2.6m
空间可容纳
床
1.2m*2m
床头柜X1
0.4m宽
- 空间适中精致小巧的卧室C,虽无过多空间,但设计合理,空间利用率极高,让您在有限的空间里享受无限的舒适与惬意。
优秀卧室C朝南,光线充足且宜人,通风条件良好,为您的私密空间打造一处自然舒适的休憩之所,无论是午后放松还是夜晚入眠,都能感受到阳光的温暖守护。- 有飘窗卧室C带飘窗设计,让您的视野更加开阔,同时享受一份宁静与舒适的生活体验。
厨房 4.7㎡ | 面宽1.8m | 进深2.6m
- 空间适中厨房空间恰到好处,既不会显得拥挤,又能满足您日常烹饪的各种需求。
- 厨房带阳台厨房有小阳台,方便储物。
卫生间A 6.1㎡ | 面宽3.2m | 进深1.9m
- 空间适中精致小巧的卫生间A,空间利用高效,让您的洗浴体验更加轻松愉快。
- 明卫有了窗户的卫生间A,不仅通风好,还能欣赏到窗外的美景,让卫浴时光更加惬意。
卫生间B 5.4㎡ | 面宽3.2m | 进深1.7m
- 空间适中卫生间B空间适中,既满足您的日常需求,又保持空间的舒适度,让您的洗浴体验更加完美。
优惠活动
查看更多优惠
- 专家解读
3室2厅1卫售完8“良好”
价格待定88.12㎡ - 专家解读
3室2厅1卫售完8“良好”
价格待定91.64㎡ - 专家解读
3室2厅1卫售完8“良好”
价格待定92.41㎡ - 专家解读
3室2厅2卫售完9“优秀”
价格待定99.23㎡ - 专家解读
3室2厅2卫售完10“极佳”
价格待定100.00㎡ - 专家解读
3室2厅2卫售完10“极佳”
价格待定100.59㎡ - 专家解读
3室2厅2卫售完10“极佳”
价格待定106.40㎡ - 专家解读
3室2厅2卫售完10“极佳”
价格待定111.58㎡ - 专家解读
3室2厅2卫售完10“极佳”
价格待定111.87㎡ - 专家解读
3室2厅2卫售完10“极佳”
价格待定112.73㎡ - 专家解读
3室2厅2卫售完10“极佳”
价格待定113.20㎡ - 专家解读
3室2厅2卫售完10“极佳”
价格待定114.34㎡ - 专家解读
3室2厅2卫售完10“极佳”
价格待定115.93㎡ - 专家解读
3室2厅2卫售完10“极佳”
价格待定116.73㎡ - 专家解读
3室2厅2卫售完10“极佳”
价格待定117.38㎡ - 专家解读
3室2厅2卫售完10“极佳”
价格待定117.81㎡ - 专家解读
3室2厅2卫售完10“极佳”
价格待定117.81㎡ - 专家解读
3室2厅2卫售完10“极佳”
价格待定120.27㎡ - 专家解读
3室2厅2卫售完10“极佳”
价格待定120.86㎡ - 专家解读
3室2厅2卫售完10“极佳”
价格待定122.07㎡ - 专家解读
3室2厅2卫售完10“极佳”
价格待定122.11㎡ - 专家解读
3室2厅2卫售完10“极佳”
价格待定122.17㎡ - 专家解读
3室2厅2卫售完10“极佳”
价格待定122.46㎡ - 专家解读
3室2厅2卫售完10“极佳”
价格待定122.73㎡ - 专家解读
3室2厅2卫售完10“极佳”
价格待定124.57㎡ - 专家解读
3室2厅2卫售完10“极佳”
价格待定125.65㎡ - 专家解读
3室2厅2卫售完9“优秀”
价格待定138.58㎡ - 专家解读
3室2厅2卫售完10“极佳”
价格待定126.31㎡
3室3厅3卫售完7“普通”
价格待定138.87㎡
3室3厅3卫售完7“普通”
价格待定139.17㎡
3室3厅3卫售完7“普通”
价格待定142.66㎡
3室2厅2卫售完10“极佳”
价格待定190.23㎡
3室2厅2卫售完10“极佳”
价格待定190.34㎡
置业顾问(6)
- 免费咨询
- 专业服务
- 区域解读
- 户型分析
查看全部
对此楼盘感兴趣的人还浏览了
三江春天
7200元/平方米
崇州用户评分8.29分
在售改善优选洋房
天悦世家
7800元/平方米
崇州用户评分8.72分
在售小户型景观居所公园地产
中国青城国际颐养中心
13000元/平方米
崇州用户评分8.16分
在售低密居所洋房
查看全部



优秀












































