朗润园 精装别墅 税费清晰,带装修南入户,带电梯 价格可议
-
449万
总价
-
6室4厅5卫
户型
-
167.81㎡
建筑面积
买房加房产交流群,省钱不踩雷
3000+人正在热聊
加入群聊
-
单价
26756元/平米
- 挂牌价格解析
-
楼层
4层
- 咨询楼层
-
套内
166.81㎡
- 咨询套内使用面积
-
楼型
独栋
-
朝向
南
-
装修
精装修
-
年代
2012
-
发布
2026-01-15
-
地铁
暂无数据
-
咨询总首付
首付约135.3万
首付税费及佣金情况 -
深度测评
小区万科朗润园(西青-中北镇)
-
更多
楼户比、楼层高度、交易历史、抵押信息
房源描述(1)
-
核心卖点问经纪人
朗润园 精装别墅 税费清晰,带装修南入户,带电梯 小区介绍 小区介绍: 朗润园是天津一座新中式设计风格的别墅,同时也是在城市与自然,工作与生活之间,自由切换,理想中的居所。朗润园座落于天津西部中北镇,整个社区采用法桐阵、银杏林和蓝轴水系进行三重景观,为业主带来宁谧的生活。 适宜人群 有人说朗润园别墅是一座永远也建不完的别墅,这是因为万科将西式别墅进行了大胆的创新,一改传统西式别墅尖顶风格,采用平层做为屋顶。整个屋顶就是一个大天台
-
业主心态问经纪人
房东置换,诚心出售,可以再谈,欢迎看房,随时恭候。
-
小区配套问经纪人
小区地理位置佳,绿化环境优越整洁,居民素质高,物业管理完善,适宜居住
-
服务介绍问经纪人
本人做房产多年,一直本着专业的房产知识,为您服务,我会在短的时间内帮您买好满意的房子,不让您错失任何好房子,更不让您每天为买房的事烦心,欢迎随时拨打我电话。
-
税费分析房贷计算
关于本房的税费信息情况,请电话联系我,我将详细的为您讲解!
-
户型解读问经纪人
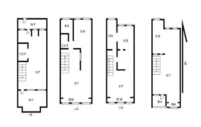
房屋拥有相对宽松的尺寸,布局通透,动静分离,设计豪华
周边配套
地址:芥园西道与外环线交口西行1.5公里处
交通综合评分
查看全部4.1
“一般”
超过天津25.2%的小区
-
地铁公交
5.0
-
驾车出行
7.0
猜你喜欢
同小区其它房源
户型齐全,主打独立衣帽间,明卫,客厅朝南四居
万科朗润园户型主要有158平-175平的独立衣帽间,明卫,客厅朝南的四居 、163平-163平的户型方正,明厨,明卫,客厅朝南,全明格局,双阳台的五居 。
*获取完整户型报告,同时会有免费语音讲解服务
-
15051元/㎡
本月挂牌均价
-
0.63%
环比上月
买房加房产交流群,省钱不踩雷
3000+人正在热聊
加入群聊
- 免费咨询
- 专业服务
- 区域解读
- 户型分析
免责声明:房源信息由网站用户提供,其真实性、合法性由信息提供者负责,最终以政府部门登记备案为准。本网站不声明或保证内容之正确性和可靠性,购买该房屋时,请谨慎核查。入学情况仅凭历史经验总结,在此不承诺升学事宜。请您在签订合同之前,切勿支付任何形式的费用,以免上当受骗。


