一梯两户,交通便利,环境优美,居家装修,诚意出售,精装好房
-
180万
总价
-
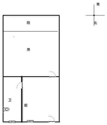
1室1厅
户型
-
37.63㎡
建筑面积
买房加房产交流群,省钱不踩雷
3000+人正在热聊
加入群聊
-
单价
47834元/平米
- 挂牌价格解析
-
楼层
低楼层/7层
- 咨询楼层
-
套内
暂无数据
- 咨询套内使用面积
-
朝向
南
-
装修
简装
-
年代
1989
-
发布
2025-10-29
-
地铁
距8号线江浦路站约529米
-
咨询总首付
首付约56.4万
首付税费及佣金情况 -
深度测评
小区双辽支路60弄小区(杨浦-鞍山)
-
更多
楼户比、楼层高度、交易历史、抵押信息
周边配套
地址:双辽支路60弄
交通综合评分
查看全部5.2
“一般”
超过上海32.5%的小区
-
地铁公交
10.0
-
城际交通
4.0
本月均价 46950元/m²
环比上月 持平
同比去年 下跌 6.49%
猜你喜欢
同小区其它房源
买房加房产交流群,省钱不踩雷
3000+人正在热聊
加入群聊
免责声明:房源信息由网站用户提供,其真实性、合法性由信息提供者负责,最终以政府部门登记备案为准。本网站不声明或保证内容之正确性和可靠性,购买该房屋时,请谨慎核查。入学情况仅凭历史经验总结,在此不承诺升学事宜。请您在签订合同之前,切勿支付任何形式的费用,以免上当受骗。



