凯阳公寓两房一厅,好户型不等人,速看
-
420万
总价
-
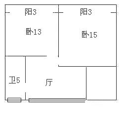
2室1厅1卫
户型
-
77.53㎡
建筑面积
买房加房产交流群,省钱不踩雷
3000+人正在热聊
加入群聊
-
单价
54173元/平米
- 挂牌价格解析
-
楼层
低楼层/24层
- 咨询楼层
-
套内
暂无数据
- 咨询套内使用面积
-
楼型
塔楼
-
朝向
南
-
装修
简装
-
供暖
自供暖
-
年代
1999
-
发布
2025-07-20
-
地铁
距12号线宁国路站约244米
-
咨询总首付
首付约105万
首付税费及佣金情况 -
深度测评
小区凯阳公寓(杨浦-周家嘴路)
-
更多
楼户比、楼层高度、交易历史、抵押信息
周边配套
地址:眉州路888弄
交通综合评分
查看全部5.2
“一般”
超过上海59.0%的小区
-
地铁公交
10.0
-
城际交通
4.0
本月均价 54229元/m²
环比上月 持平
同比去年 下跌 8.11%
猜你喜欢
同小区其它房源
户型齐全,主打明卫,明厨,客厅朝南二居
凯阳公寓户型主要有81平-91平的明卫,明厨,客厅朝南的二居 、105平-105平的户型方正,明卫,明厨,独立衣帽间,客厅朝南,主卧朝南的三居 。
*获取完整户型报告,同时会有免费语音讲解服务
买房加房产交流群,省钱不踩雷
3000+人正在热聊
加入群聊
免责声明:房源信息由网站用户提供,其真实性、合法性由信息提供者负责,最终以政府部门登记备案为准。本网站不声明或保证内容之正确性和可靠性,购买该房屋时,请谨慎核查。入学情况仅凭历史经验总结,在此不承诺升学事宜。请您在签订合同之前,切勿支付任何形式的费用,以免上当受骗。



