新上!电梯高区精装修南北通带车位!低于市场价急售
-
500万
总价
-
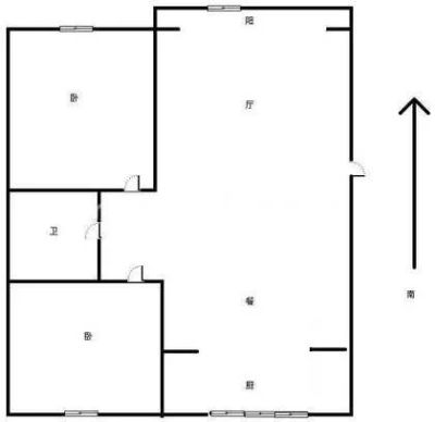
2室2厅1卫
户型
-
93.93㎡
建筑面积
买房加房产交流群,省钱不踩雷
3000+人正在热聊
-
单价
53231元/平米
- 挂牌价格解析
-
楼层
中层/6层
- 咨询楼层
-
套内
92.93㎡
- 咨询套内使用面积
-
楼型
板楼
-
朝向
南北
-
装修
精装修
-
年代
2000
-
发布
2026-03-20
-
地铁
距10号线(新江湾城-虹桥火车站)江湾体育场站约802米
-
咨询总首付
首付约256.7万
首付税费及佣金情况 -
深度测评
小区民富家园(杨浦-五角场)
-
更多
楼户比、楼层高度、交易历史、抵押信息
-
核验码
202203424785
房源描述(1)
-
核心卖点问经纪人
小区简介: 1、小区物业管理严格,服务到家让你生活放心。 2、小区人文素质高,是您居住的佳所。 3、小区居住安静舒适,让您居住并享受高品质的生活。 4、小区绿化率高达,绿树成荫鸟语花香让您随时呼吸到新鲜空气。 5、本小区是花园洋房加别墅,密度低,绿树成荫,环境宜人,适合居家。 户型介绍: 房子在小区里的位置比较好,不临马路,不临小区门,非常安静。房子面宽较宽,居住舒适度高,采光度好。因为是四层设计,所以功能区间划分得很好,无论是与老人住,还是经常有访客来访,都能很好的做到互不打扰,居住、、娱乐都预留有空间 周边配套 此次向您力推的是民富家园的房子!相信为您的这套房子您一定会满意,赶快行动吧,先到先得! 房屋年代:2000年,面积:93.93平方米,朝向:南北,空间利用率高
-
业主心态问经纪人
房东置换,诚心出售,可以再谈,欢迎看房,随时恭候。
-
小区配套问经纪人
小区地理位置佳,绿化环境优越整洁,居民素质高,物业管理完善,适宜居住
-
服务介绍问经纪人
本人做房产多年,一直本着专业的房产知识,为您服务,我会在短的时间内帮您买好满意的房子,不让您错失任何好房子,更不让您每天为买房的事烦心,欢迎随时拨打我电话。
-
税费分析房贷计算
关于本房的税费信息情况,请电话联系我,我将详细的为您讲解!
-
户型解读问经纪人
房屋拥有相对宽松的尺寸,布局通透,动静分离,设计豪华
周边配套
交通综合评分
查看全部超过上海49.0%的小区
-
地铁公交
10.0
-
城际交通
4.0
本月均价 61256元/m²
环比上月 持平
同比去年 下跌 5.72%
猜你喜欢
同小区其它房源
户型齐全,主打户型方正,明卫,明厨,客厅朝南,主卧朝南二居
民富家园户型主要有66平-72平的户型方正,明卫,明厨,客厅朝南,主卧朝南的二居 、126平-126平的户型方正,明卫,明厨,主卧朝南的三居 、51平-51平的户型方正,明厨,明卫,客厅朝南的一居 。
*获取完整户型报告,同时会有免费语音讲解服务
-
55529元/㎡
本月挂牌均价
-
持平
环比上月
买房加房产交流群,省钱不踩雷
3000+人正在热聊
- 免费咨询
- 专业服务
- 区域解读
- 户型分析

