茶花园公园旁 全新200平大平层 带80平大露台 可按揭
-
350万
总价
-
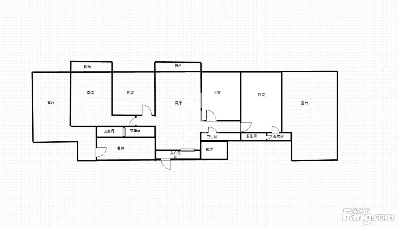
5室2厅3卫
户型
-
200㎡
建筑面积
买房加房产交流群,省钱不踩雷
3000+人正在热聊
-
单价
17500元/平米
- 挂牌价格解析
-
楼层
低层/31层
- 咨询楼层
-
套内
195㎡
- 咨询套内使用面积
-
楼型
板楼
-
朝向
南
-
装修
中装修
-
年代
2007
-
发布
2025-12-27
-
地铁
距1号线麻村站约267米
-
深度测评
小区新竹路气象小区(青秀-东葛片区)
-
更多
楼户比、楼层高度、交易历史、抵押信息
房源描述(1)
-
核心卖点问经纪人
1、看房方便 2、小区绿化好、很安静居住很舒服、停车宽裕、出行方便 3、房子采光好、南北通透、房间都很敞亮、户型方正不浪费 4、周边有大型市、和菜市,买菜和买生活用品很齐全 5、交通方便、一号线多路公交到达南宁各个地方 6、纯手工拍照、图片很真实、好房子不等人、请尽快联系我看房 7、如果这套不合适,我这里还有很多房源
-
业主心态问经纪人
业主很信任我,我能了解业主卖房新的动态。目前市场交易量平稳,政策已经基本稳定,是市场触底入手的好时候。请不要错过性价比高的好房。
-
小区配套问经纪人
小区周围配套齐全,生活便利,近菜市,近公园,小区配有幼儿园。
-
服务介绍问经纪人
本人做房产多年,本着专业的房产知识,为您服务,我会在短的时间内帮您买好满意的房子,不让您错失任何好房子,更不让您每天为买房的事烦心,欢迎随时联系!
-
税费分析房贷计算
房子满五年,有个税,买方仅用交契税+个税,交易成本低。
-
户型解读问经纪人
房子厅大房大,南北通透,较新小区,小区物业管理不错,居家之选!
周边配套
交通综合评分
查看全部超过南宁16.1%的小区
-
地铁公交
10.0
-
城际交通
4.0
本月均价 11910元/m²
环比上月 上涨 1.3%
同比去年 下跌 10.57%
猜你喜欢
同小区其它房源
-
10538元/㎡
本月挂牌均价
-
0.67%
环比上月
买房加房产交流群,省钱不踩雷
3000+人正在热聊
- 免费咨询
- 专业服务
- 区域解读
- 户型分析

