长乐壹村 房子很老旧 一到三楼的房子
-
151万
总价
-
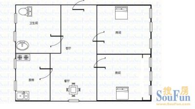
3室1厅
户型
-
71.97㎡
建筑面积
买房加房产交流群,省钱不踩雷
3000+人正在热聊
加入群聊
-
单价
20981元/平米
- 挂牌价格解析
-
楼层
低楼层/3层
- 咨询楼层
-
套内
暂无数据
- 咨询套内使用面积
-
朝向
南
-
装修
简装
-
供暖
暂无数据
-
发布
2024-07-17
-
地铁
距1号线徐家漕长乐站约427米
-
咨询总首付
首付约58.7万
首付税费及佣金情况 -
深度测评
小区长乐新村(海曙-望春路)
-
更多
楼户比、楼层高度、交易历史、抵押信息
周边配套
地址:海曙区望春路
交通综合评分
查看全部5.2
“一般”
超过宁波6.8%的小区
-
地铁公交
10.0
-
城际交通
4.0
本月均价 18836元/m²
环比上月 下跌 3.07%
同比去年 下跌 20.81%
猜你喜欢
同小区其它房源
户型齐全,主打户型方正,明厨,明卫,客厅朝南二居
长乐新村户型主要有68平-73平的户型方正,明厨,明卫,客厅朝南的二居 、72平-117平的户型方正,明厨,明卫的三居 、128平-128平的户型方正,明厨,明卫的五居 。
*获取完整户型报告,同时会有免费语音讲解服务
-
17011元/㎡
本月挂牌均价
-
1.44%
环比上月
买房加房产交流群,省钱不踩雷
3000+人正在热聊
加入群聊
免责声明:房源信息由网站用户提供,其真实性、合法性由信息提供者负责,最终以政府部门登记备案为准。本网站不声明或保证内容之正确性和可靠性,购买该房屋时,请谨慎核查。入学情况仅凭历史经验总结,在此不承诺升学事宜。请您在签订合同之前,切勿支付任何形式的费用,以免上当受骗。



