新居时代3室2厅2卫南朝向246.0万元/套出售
-
246万
总价
-
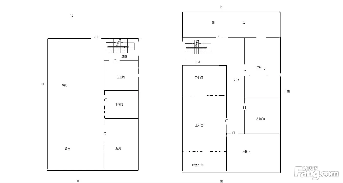
3室2厅2卫
户型
-
122.27㎡
建筑面积
买房加房产交流群,省钱不踩雷
3000+人正在热聊
加入群聊
-
单价
20119元/平米
- 挂牌价格解析
-
楼层
高层/9层
- 咨询楼层
-
套内
暂无数据
- 咨询套内使用面积
-
朝向
南
-
装修
精装修
-
年代
2003
-
发布
2026-01-03
-
地铁
距4号线兴宁桥东站约862米
-
咨询总首付
首付约97.5万
首付税费及佣金情况 -
深度测评
小区新居时代(鄞州-贺丞路)
-
更多
楼户比、楼层高度、交易历史、抵押信息
-
核验码
202111013302120067
房源描述(1)
-
核心卖点
新居时代 电梯房 室内宽敞明亮 交通便利 附近菜场商超林立 带车库(车库另算)镇安小学 7中学
-
业主心态
业主诚心出售, 价格可商量 拜托同事多多推送
周边配套
地址:文景街78弄47号
交通综合评分
查看全部8.2
“较好”
超过宁波19.4%的小区
-
地铁公交
10.0
-
驾车出行
10.0
-
城际交通
4.0
本月均价 22183元/m²
环比上月 上涨 3.05%
同比去年 下跌 1.59%
猜你喜欢
同小区其它房源
-
26297元/㎡
本月挂牌均价
-
0.71%
环比上月
买房加房产交流群,省钱不踩雷
3000+人正在热聊
加入群聊
- 免费咨询
- 专业服务
- 区域解读
- 户型分析
免责声明:房源信息由网站用户提供,其真实性、合法性由信息提供者负责,最终以政府部门登记备案为准。本网站不声明或保证内容之正确性和可靠性,购买该房屋时,请谨慎核查。入学情况仅凭历史经验总结,在此不承诺升学事宜。请您在签订合同之前,切勿支付任何形式的费用,以免上当受骗。


