四季云顶4室2厅3卫东南朝向318.0万元/套出售
-
318万
总价
-
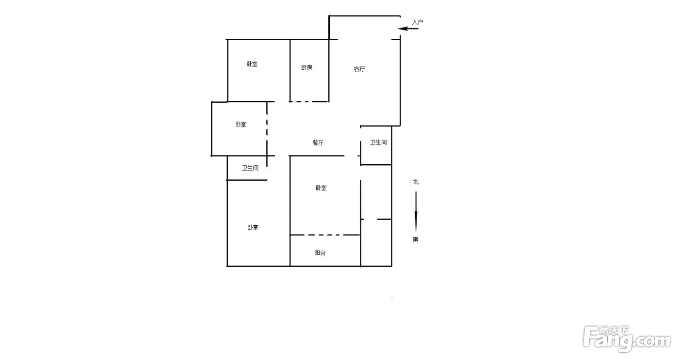
4室2厅3卫
户型
-
179㎡
建筑面积
买房加房产交流群,省钱不踩雷
3000+人正在热聊
加入群聊
-
单价
17765元/平米
- 挂牌价格解析
-
楼层
中层/33层
- 咨询楼层
-
套内
暂无数据
- 咨询套内使用面积
-
朝向
东南
-
装修
简装修
-
年代
2012
-
发布
2026-04-18
-
地铁
距5号线庙堰站约482米
-
咨询总首付
首付约138.8万
首付税费及佣金情况 -
深度测评
小区四季云顶(鄞州-南部商务区)
-
更多
楼户比、楼层高度、交易历史、抵押信息
房源描述(1)
-
核心卖点
楼层佳, 采光视线好,装修保养新 房间大
-
业主心态
业主诚心出售,看房先预约,看中可谈价格
周边配套
地址:鄞县大道与钟公庙路交叉口附近(金色水岸与金地国际花园正中间)
交通综合评分
查看全部7.9
“较好”
超过宁波31.7%的小区
-
地铁公交
10.0
-
驾车出行
9.0
-
城际交通
4.0
本月均价 22320元/m²
环比上月 下跌 4.82%
同比去年 下跌 15.86%
猜你喜欢
同小区其它房源
户型齐全,主打明卫,双阳台,双卧朝南,主卧朝南四居
四季云顶户型主要有163平-178平的明卫,双阳台,双卧朝南,主卧朝南的四居 、131平-136平的明厨,独立衣帽间,明卫,客厅朝南的三居 、396平-396平的南北通透,客厅朝南,主卧朝南的五居 。
*获取完整户型报告,同时会有免费语音讲解服务
-
24733元/㎡
本月挂牌均价
-
0.67%
环比上月
买房加房产交流群,省钱不踩雷
3000+人正在热聊
加入群聊
- 免费咨询
- 专业服务
- 区域解读
- 户型分析
免责声明:房源信息由网站用户提供,其真实性、合法性由信息提供者负责,最终以政府部门登记备案为准。本网站不声明或保证内容之正确性和可靠性,购买该房屋时,请谨慎核查。入学情况仅凭历史经验总结,在此不承诺升学事宜。请您在签订合同之前,切勿支付任何形式的费用,以免上当受骗。



