中信泰富济南尊,4室2厅 地铁口 CBD中心 无高税 南北通
-
430万
总价
-
4室2厅1卫
户型
-
151.12㎡
建筑面积
买房加房产交流群,省钱不踩雷
3000+人正在热聊
-
单价
28454元/平米
- 挂牌价格解析
-
楼层
中层/15层
- 咨询楼层
-
套内
暂无数据
- 咨询套内使用面积
-
楼型
板楼
-
朝向
南
-
装修
简装修
-
年代
2020
-
发布
2024-11-30
-
地铁
距3号线丁家庄站约119米
-
咨询总首付
首付约188.1万
首付税费及佣金情况 -
深度测评
小区中信泰富济南尊(历下-解放东路)
-
更多
楼户比、楼层高度、交易历史、抵押信息
房源描述(1)
-
核心卖点问经纪人
卖点:CBD商圈,户型好,南北通透,单价低,免高税,随时看房; 户型介绍:户型方正,南北通透,两室朝阳;布局合理,面积没有浪费; 产权信息:产权明晰,过户交易安全快捷;有钥匙能够随时看房;
-
业主心态问经纪人
1、业主介绍:房子格局很好。房子在整个小区里位置、楼层都很好,采光好,视野开阔。 2、卖房原因:工作调动,卖了房子在买房子,忍痛割爱。 3、诚意出售:诚心卖房,希望早点碰到有缘人!
-
小区配套问经纪人
位置:小区地理位置佳,绿化率高,居民素质高 配套:有健身器材,小型篮球场,可供小区居民使用 车位:停车位充足,建有地上停车场和地下车库 保安:小区内24保安巡逻
-
服务介绍问经纪人
本人从事房地产多年,公司有大量好房源,欢迎进入我的店铺查看,欢迎随时电话咨询,相信我的专业,为您置业安家保驾护航。
周边配套
本月均价 29273元/m²
环比上月 上涨 0.93%
同比去年 下跌 6.95%
猜你喜欢
同小区其它房源
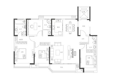
户型齐全,主打南北通透,户型方正,客厅朝南,主卧朝南,独立玄关,U型厨房,厨卫不对门四居
中信泰富·济南尊户型主要有151平-202平的南北通透,户型方正,客厅朝南,主卧朝南,独立玄关,U型厨房,厨卫不对门的四居 、103平-149平的南北通透,全明格局,采光充足,客厅朝南,三开间朝南,主卧朝南的三居 。
*获取完整户型报告,同时会有免费语音讲解服务
-
21903元/㎡
本月挂牌均价
-
2.34%
环比上月
买房加房产交流群,省钱不踩雷
3000+人正在热聊
- 免费咨询
- 专业服务
- 区域解读
- 户型分析


