胜利实验杭中 自带独立会所 恒温泳池 健身房 篮球场 网球场
-
1720万
总价
-
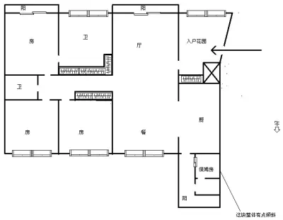
3室2厅2卫
户型
-
205.51㎡
建筑面积
买房加房产交流群,省钱不踩雷
3000+人正在热聊
-
单价
83694元/平米
- 挂牌价格解析
-
楼层
低楼层/21层
- 咨询楼层
-
套内
暂无数据
- 咨询套内使用面积
-
楼型
板楼
-
朝向
南
-
装修
精装
-
年代
2007
-
发布
2025-11-14
-
地铁
距4号线甬江路站约574米
-
咨询总首付
首付约569.5万
首付税费及佣金情况 -
深度测评
小区金色海岸(上城-南星)
-
更多
楼户比、楼层高度、交易历史、抵押信息
-
核验码
251110LK415942
房源描述(2)
-
核心卖点问经纪人
金色海岸位于杭州上城区紫阳板块,地处之江路与姚江路交汇处,地理位置优越。这套住宅为南向精装修大平层,建筑面积达205.51平方米,采用3室2厅2卫1厨3阳台的宽敞布局,空间利用率高。房屋位于低楼层,总层高21层,采光通风俱佳。 该房源为2007年建成的品质住宅,房本已满五年,产权清晰。室内精装修保养良好,三个阳台设计充分满足生活休闲需求。单价83694元/平方米,总价1720万,性价比突出。金色海岸作为上城区成熟社区,周边配套完善,是改善型购房者的理想选择。
-
小区配套问经纪人
商场:久光广场、万泰城;医院:杭州市人民医院(南星分院)、杭州中兴医院;银行:中国民生银行(杭州延安支行)、中国农业银行(杭州闻潮路支行);
周边配套
交通综合评分
查看全部超过杭州64.6%的小区
-
地铁公交
10.0
-
驾车出行
10.0
-
城际交通
4.5
本月均价 109604元/m²
环比上月 下跌 0.72%
同比去年 上涨 2.96%
猜你喜欢
同小区其它房源
户型齐全,主打独立衣帽间,明卫,客厅朝南,主卧朝南三居
金色海岸户型主要有205平-335平的独立衣帽间,明卫,客厅朝南,主卧朝南的三居 、160平-327平的户型方正,明卫,客厅朝南,独立衣帽间的五居 。
*获取完整户型报告,同时会有免费语音讲解服务
-
40818元/㎡
本月挂牌均价
-
0.43%
环比上月
买房加房产交流群,省钱不踩雷
3000+人正在热聊
- 免费咨询
- 专业服务
- 区域解读
- 户型分析



