众安桥·广福路·1室·1厅
-
150万
总价
-
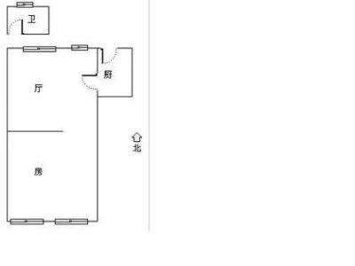
1室1厅1卫
户型
-
35.45㎡
建筑面积
买房加房产交流群,省钱不踩雷
3000+人正在热聊
加入群聊
-
单价
42313元/平米
- 挂牌价格解析
-
楼层
低楼层/7层
- 咨询楼层
-
套内
暂无数据
- 咨询套内使用面积
-
楼型
板楼
-
朝向
东西
-
装修
精装
-
年代
1996
-
发布
2023-08-08
-
地铁
距1号线(下沙江滨-湘湖)凤起路站约406米
-
咨询总首付
首付约43.9万
首付税费及佣金情况 -
深度测评
小区广福路小区(拱墅-孩儿巷)
-
更多
楼户比、楼层高度、交易历史、抵押信息
-
核验码
230805AE724511
周边配套
地址:延安路与孩儿巷交叉口
交通综合评分
查看全部5.5
“一般”
超过杭州79.9%的小区
-
地铁公交
10.0
-
城际交通
5.0
本月均价 44673元/m²
环比上月 下跌 0.93%
同比去年 下跌 6.04%
猜你喜欢
同小区其它房源
户型齐全,主打明卫,明厨,客厅朝南,全明格局二居
广福路小区户型主要有32平-67平的明卫,明厨,客厅朝南,全明格局的二居 、38平-46平的明卫,明厨的一居 、78平-78平的户型方正,明厨的三居 。
*获取完整户型报告,同时会有免费语音讲解服务
买房加房产交流群,省钱不踩雷
3000+人正在热聊
加入群聊
免责声明:房源信息由网站用户提供,其真实性、合法性由信息提供者负责,最终以政府部门登记备案为准。本网站不声明或保证内容之正确性和可靠性,购买该房屋时,请谨慎核查。入学情况仅凭历史经验总结,在此不承诺升学事宜。请您在签订合同之前,切勿支付任何形式的费用,以免上当受骗。



