万家花园欣和苑商品房 总价低大四房 诚心出售看中可谈
-
430万
总价
-
4室2厅
户型
-
129.13㎡
建筑面积
买房加房产交流群,省钱不踩雷
3000+人正在热聊
加入群聊
-
单价
33300元/平米
- 挂牌价格解析
-
楼层
低楼层/6层
- 咨询楼层
-
套内
暂无数据
- 咨询套内使用面积
-
楼型
板楼
-
朝向
南
-
装修
简装
-
供暖
自供暖
-
发布
2024-09-30
-
地铁
距4号线新风站约607米
-
咨询总首付
首付约123.7万
首付税费及佣金情况 -
深度测评
小区万家花园欣和苑(上城-闸弄口)
-
更多
楼户比、楼层高度、交易历史、抵押信息
-
核验码
240922IY495670
周边配套
地址:天城路95号
交通综合评分
查看全部7.3
“较好”
超过杭州30.1%的小区
-
地铁公交
10.0
-
驾车出行
7.0
-
城际交通
4.0
本月均价 35294元/m²
环比上月 下跌 0.8%
同比去年 下跌 8.77%
猜你喜欢
同小区其它房源
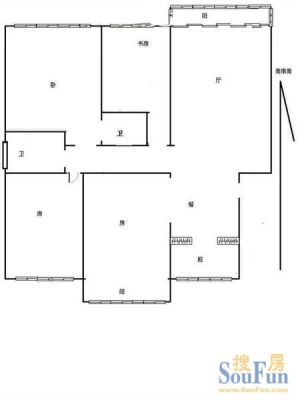
户型齐全,主打户型方正,明卫,明厨,双阳台,双卧朝南三居
万家花园欣和苑户型主要有96平-142平的户型方正,明卫,明厨,双阳台,双卧朝南的三居 、142平-165平的户型方正,明卫,明厨,客厅朝南,双卧朝南,主卧朝南的四居 、104平-104平的户型方正,明厨,客厅朝南,双卧朝南,主卧朝南的五居 。
*获取完整户型报告,同时会有免费语音讲解服务
买房加房产交流群,省钱不踩雷
3000+人正在热聊
加入群聊
免责声明:房源信息由网站用户提供,其真实性、合法性由信息提供者负责,最终以政府部门登记备案为准。本网站不声明或保证内容之正确性和可靠性,购买该房屋时,请谨慎核查。入学情况仅凭历史经验总结,在此不承诺升学事宜。请您在签订合同之前,切勿支付任何形式的费用,以免上当受骗。



