此房低总价,一梯两户,全明,安静宜居
-
235万
总价
-
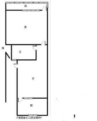
1室1厅1卫
户型
-
41.7㎡
建筑面积
买房加房产交流群,省钱不踩雷
3000+人正在热聊
加入群聊
-
单价
56355元/平米
- 挂牌价格解析
-
楼层
低楼层/6层
- 咨询楼层
-
套内
暂无数据
- 咨询套内使用面积
-
楼型
板楼
-
朝向
南
-
装修
简装
-
供暖
自供暖
-
年代
1997
-
发布
2022-10-10
-
地铁
距2号线文新站约738米
-
咨询总首付
首付约69万
首付税费及佣金情况 -
深度测评
小区天河西苑(西湖-文新)
-
更多
楼户比、楼层高度、交易历史、抵押信息
-
核验详情
核验码181128073151
周边配套
地址:文一西路102号
交通综合评分
查看全部6.7
“较好”
超过杭州33.5%的小区
-
地铁公交
10.0
-
驾车出行
9.0
本月均价 40650元/m²
环比上月 下跌 0.23%
同比去年 下跌 8.39%
猜你喜欢
同小区其它房源
户型齐全,主打户型方正,明厨二居
天河西苑户型主要有41平-99平的户型方正,明厨的二居 、80平-139平的户型方正,明卫,明厨,主卧朝南的三居 、135平-175平的户型方正,明厨,客厅朝南,双阳台,双卧朝南的四居 。
*获取完整户型报告,同时会有免费语音讲解服务
买房加房产交流群,省钱不踩雷
3000+人正在热聊
加入群聊
免责声明:房源信息由网站用户提供,其真实性、合法性由信息提供者负责,最终以政府部门登记备案为准。本网站不声明或保证内容之正确性和可靠性,购买该房屋时,请谨慎核查。入学情况仅凭历史经验总结,在此不承诺升学事宜。请您在签订合同之前,切勿支付任何形式的费用,以免上当受骗。



