【此房只应天上有】经典四叶草户型,南北通透,格局方方正正。
-
230万
总价
-
4室2厅2卫
户型
-
129.57㎡
建筑面积
买房加房产交流群,省钱不踩雷
3000+人正在热聊
-
单价
17751元/平米
- 挂牌价格解析
-
楼层
底层/7层
- 咨询楼层
-
套内
暂无数据
- 咨询套内使用面积
-
楼型
板楼
-
朝向
南
-
装修
毛坯
-
年代
2022
-
发布
2025-12-03
-
咨询总首付
首付约68.9万
首付税费及佣金情况 -
深度测评
小区星创杭启云珹府(余杭-瓶窑)
-
更多
楼户比、楼层高度、交易历史、抵押信息
房源描述(1)
-
核心卖点问经纪人
户型:4室2厅2卫,朝向:南北通透,格局方正,使用率高达90% 1、客厅宽敞舒适、落地阳台让充足的阳光不留余地的闯进来 2、主卧,次卧朝向,面积个性合理 3、厨房宽敞,让您和家人有足够的空间展现私家厨艺 4、连接客厅和厨房之间是您和家人享受美味的餐厅,让您热情的招待亲朋好友
-
业主心态问经纪人
房东置换,诚心出售,价格可以再谈,欢迎看房,随时恭候。
-
小区配套问经纪人
位置:小区地理位置佳,绿化率高,居民素质高 配套:有健身器材,小型篮球场,可供小区居民使用 车位:停车位充足,建有地上停车场和地下车库 保安:小区内24保安巡逻
-
服务介绍问经纪人
本人从事房地产多年,公司有大量好房源,欢迎进入我的店铺查看,欢迎随时电话咨询,相信我的专业,为您置业安家保驾护航。
-
税费分析房贷计算
一手新房只有契税,没有中介费和其他费用。
周边配套
本月均价 19115元/m²
环比上月 下跌 2.35%
同比去年 上涨 20.78%
猜你喜欢
同小区其它房源
户型齐全,主打明厨明卫,双阳台四居
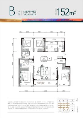
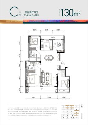
星创云珹府户型主要有116平-152平的明厨明卫,双阳台的四居 、106平-106平的客厅朝南,明厨明卫的三居 。
*获取完整户型报告,同时会有免费语音讲解服务
-
14043元/㎡
本月挂牌均价
-
0.45%
环比上月
买房加房产交流群,省钱不踩雷
3000+人正在热聊
- 免费咨询
- 专业服务
- 区域解读
- 户型分析

