教工里新出房源 南北通透 两室一厅 总价低 小区位置好 诚心
-
155万
总价
-
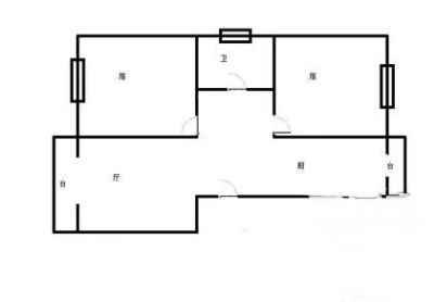
2室1厅1卫
户型
-
50.11㎡
建筑面积
买房加房产交流群,省钱不踩雷
3000+人正在热聊
加入群聊
-
单价
30932元/平米
- 挂牌价格解析
-
楼层
低层/7层
- 咨询楼层
-
套内
暂无数据
- 咨询套内使用面积
-
楼型
板楼
-
朝向
南
-
装修
简装修
-
年代
1995
-
发布
2025-11-18
-
地铁
暂无数据
-
咨询总首付
首付约45.3万
首付税费及佣金情况 -
深度测评
小区教工里(拱墅-塘河)
-
更多
楼户比、楼层高度、交易历史、抵押信息
-
核验码
220325JR969315
房源描述(1)
周边配套
地址:教工路555号
交通综合评分
查看全部5.2
“一般”
超过杭州66.6%的小区
-
地铁公交
10.0
-
城际交通
4.0
本月均价 26027元/m²
环比上月 下跌 7.5%
同比去年 下跌 11.91%
猜你喜欢
同小区其它房源
-
31291元/㎡
本月挂牌均价
-
0.59%
环比上月
买房加房产交流群,省钱不踩雷
3000+人正在热聊
加入群聊
- 免费咨询
- 专业服务
- 区域解读
- 户型分析
免责声明:房源信息由网站用户提供,其真实性、合法性由信息提供者负责,最终以政府部门登记备案为准。本网站不声明或保证内容之正确性和可靠性,购买该房屋时,请谨慎核查。入学情况仅凭历史经验总结,在此不承诺升学事宜。请您在签订合同之前,切勿支付任何形式的费用,以免上当受骗。

