新出标准的小套,一房一厅一卫户型,精装修
-
130万
总价
-
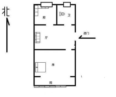
1室1厅1卫
户型
-
45㎡
建筑面积
买房加房产交流群,省钱不踩雷
3000+人正在热聊
加入群聊
-
单价
28889元/平米
- 挂牌价格解析
-
楼层
高层/6层
- 咨询楼层
-
套内
暂无数据
- 咨询套内使用面积
-
楼型
板楼
-
朝向
南
-
装修
简装修
-
年代
1996
-
发布
2025-08-03
-
地铁
距5号线善贤站约1168米
-
咨询总首付
首付约38.1万
首付税费及佣金情况 -
深度测评
小区大关东四苑(拱墅-大关)
-
更多
楼户比、楼层高度、交易历史、抵押信息
-
核验码
180524046764
房源描述(1)
周边配套
地址:大关苑东路与盛苑路交叉口
交通综合评分
查看全部5.3
“一般”
超过杭州90.9%的小区
-
地铁公交
10.0
-
城际交通
4.5
本月均价 24920元/m²
环比上月 下跌 1.12%
同比去年 下跌 13.17%
猜你喜欢
同小区其它房源
户型齐全,主打户型方正,明卫,明厨二居
大关东四苑户型主要有52平-70平的户型方正,明卫,明厨的二居 、61平-81平的户型方正,明卫,明厨的三居 、33平-44平的户型方正,明厨,主卧朝南的一居 。
*获取完整户型报告,同时会有免费语音讲解服务
-
27297元/㎡
本月挂牌均价
-
0.02%
环比上月
买房加房产交流群,省钱不踩雷
3000+人正在热聊
加入群聊
- 免费咨询
- 专业服务
- 区域解读
- 户型分析
免责声明:房源信息由网站用户提供,其真实性、合法性由信息提供者负责,最终以政府部门登记备案为准。本网站不声明或保证内容之正确性和可靠性,购买该房屋时,请谨慎核查。入学情况仅凭历史经验总结,在此不承诺升学事宜。请您在签订合同之前,切勿支付任何形式的费用,以免上当受骗。

