电梯房10号地铁口,位置清静,看房方便
-
280万
总价
-
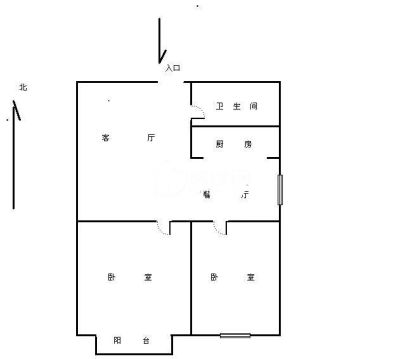
2室2厅1卫
户型
-
90.13㎡
建筑面积
买房加房产交流群,省钱不踩雷
3000+人正在热聊
加入群聊
-
单价
31066元/平米
- 挂牌价格解析
-
楼层
中层/18层
- 咨询楼层
-
套内
暂无数据
- 咨询套内使用面积
-
楼型
板楼
-
朝向
南
-
装修
精装修
-
年代
2007
-
发布
2025-10-21
-
地铁
距2号线学院路站约1034米
-
咨询总首付
首付约80.4万
首付税费及佣金情况 -
深度测评
小区翠锦苑(西湖-翠苑)
-
更多
楼户比、楼层高度、交易历史、抵押信息
-
核验码
231117WP479312
房源描述(1)
周边配套
地址:学院春晓对面
交通综合评分
查看全部4.0
“一般”
超过杭州91.3%的小区
-
地铁公交
10.0
本月均价 35136元/m²
环比上月 上涨 1.88%
同比去年 下跌 3.22%
猜你喜欢
同小区其它房源
户型齐全,主打户型方正,明厨,主卧朝南二居
翠锦苑户型主要有90平-90平的户型方正,明厨,主卧朝南的二居 、111平-111平的明卫,明厨,客厅朝南的三居 。
*获取完整户型报告,同时会有免费语音讲解服务
-
46892元/㎡
本月挂牌均价
-
0.39%
环比上月
买房加房产交流群,省钱不踩雷
3000+人正在热聊
加入群聊
- 免费咨询
- 专业服务
- 区域解读
- 户型分析
免责声明:房源信息由网站用户提供,其真实性、合法性由信息提供者负责,最终以政府部门登记备案为准。本网站不声明或保证内容之正确性和可靠性,购买该房屋时,请谨慎核查。入学情况仅凭历史经验总结,在此不承诺升学事宜。请您在签订合同之前,切勿支付任何形式的费用,以免上当受骗。


